პ 703

373 m²

ავტორი: p1000.ge

პროექტის ღირებულება: 8579 ₾

მშენებლობის ფასი: 215594

პარამეტრები

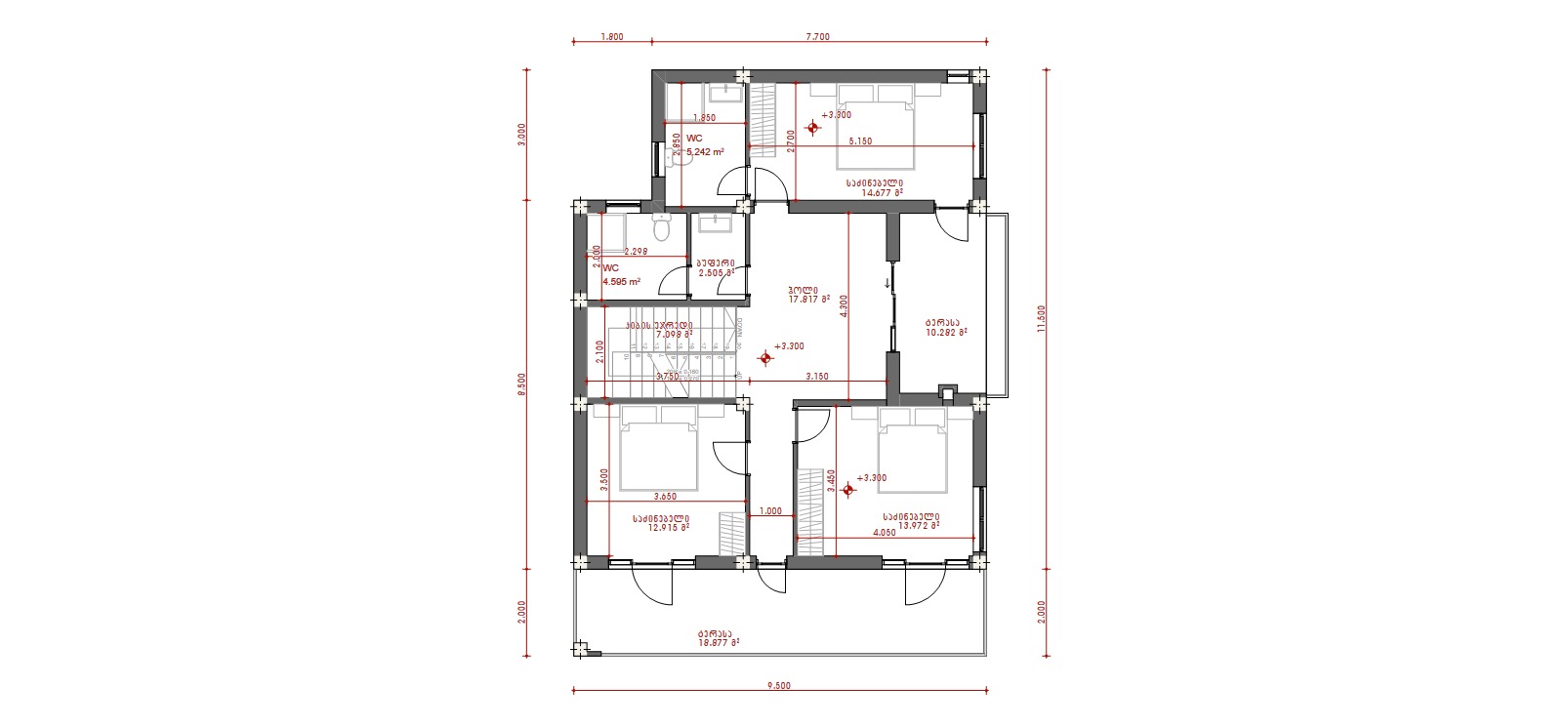
საცხოვრებელი ფართი

373 მ²

შენობის ფართობი

373 მ²

სიმაღლე

9 მ

ნაკვეთის მინიმალური ზომა

0 მ²

სართულები

2

ოთახები

5

პროექტის ღირებულება

8579 ₾

მშენებლობის ფასი

215594 ₾

აღწერა

თანამედროვე ორსართულიანი საცხოვრებელი/სააგარაკე ტიპის ინდივიდუალური სახლი, მოცემული პროექტი მოიცავს, ტოპოგრაფიას, გეოლოგიას,აზომვით ნახაზებს, მშენებლობის ნებართვის აღებას, პროექტის მომზადება-შეთანხმებას, კონსტრუქციულ ნახაზებს, ენერგო და წყალგაყვანილობის გეგმებს, შესაბამის მუნიციპალურ სამსახურებში თქვენს წარმომადგენლობას.

სართულის გეგმები

1 2