p30

130 m²

ავტორი: p1000.ge

პროექტის ღირებულება: 3250 ₾

მშენებლობის ფასი: 72800

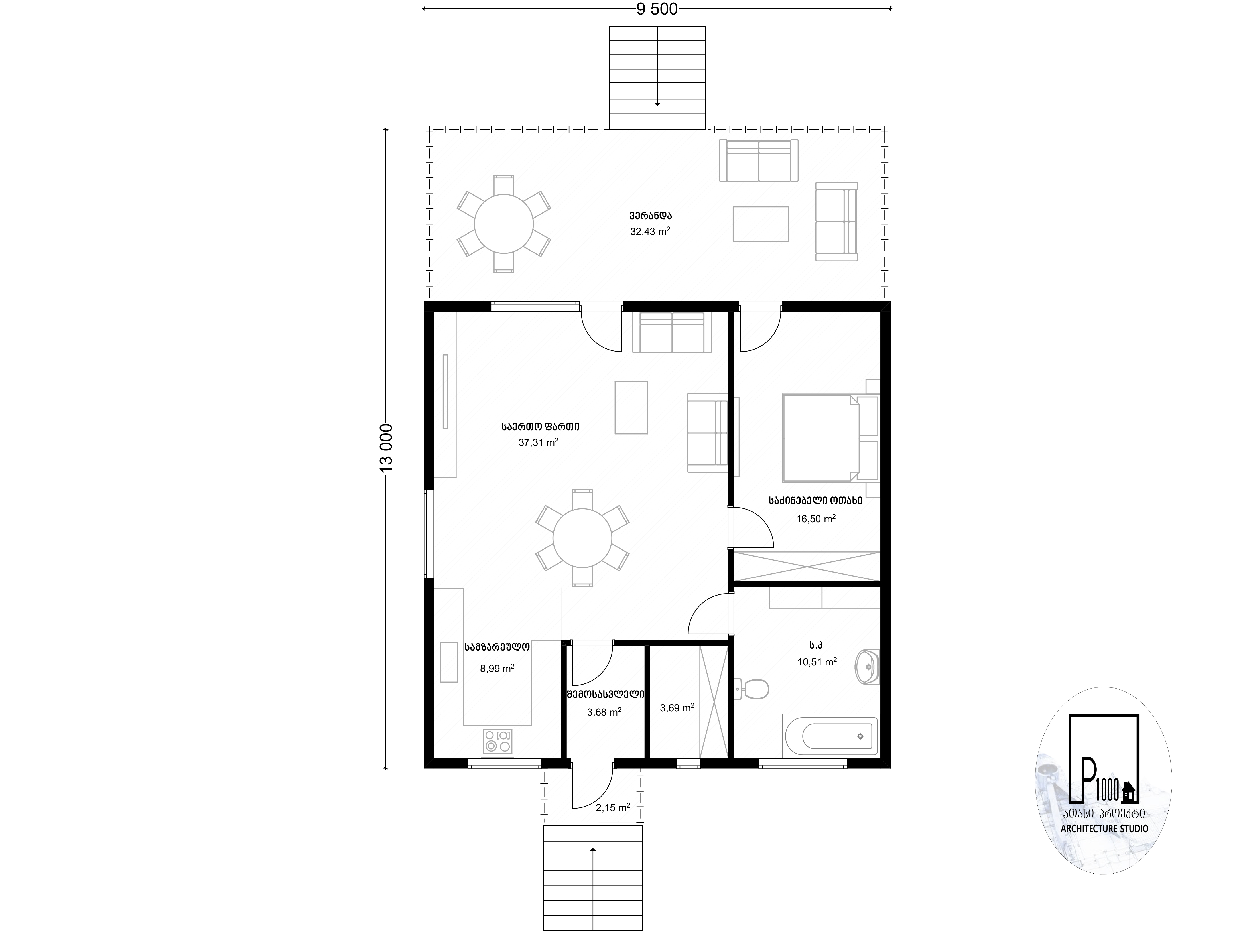
პარამეტრები

საცხოვრებელი ფართი

110 მ²

შენობის ფართობი

130 მ²

სიმაღლე

5050 მ

ნაკვეთის მინიმალური ზომა

300 მ²

სართულები

1

ოთახები

3

პროექტის ღირებულება

3250 ₾

მშენებლობის ფასი

72800 ₾

აღწერა

კლასიკური ერთსართულიანი საცხოვრებელი/სააგარაკე ტიპის ინდივიდუალური სახლი, მოცემული პროექტი მოიცავს, ტოპოგრაფიას, გეოლოგიას,აზომვით ნახაზებს, მშენებლობის ნებართვის აღებას, პროექტის მომზადება-შეთანხმებას, კონსტრუქციულ ნახაზებს, ენერგო და წყალგაყვანილობის გეგმებს, შესაბამის მუნიციპალურ სამსახურებში თქვენს წარმომადგენლობას.

სართულის გეგმები

5