პ1026

296 m²

ავტორი: p1000.ge

პროექტის ღირებულება: 8584 ₾

მშენებლობის ფასი: 199800

პარამეტრები

საცხოვრებელი ფართი

296 მ²

შენობის ფართობი

296 მ²

სიმაღლე

6 მ

ნაკვეთის მინიმალური ზომა

0 მ²

სართულები

2

ოთახები

0

პროექტის ღირებულება

8584 ₾

მშენებლობის ფასი

199800 ₾

აღწერა

თანამედროვე ორსართულიანი საცხოვრებელი/სააგარაკე ტიპის ინდივიდუალური სახლი, მოცემული პროექტი მოიცავს, ტოპოგრაფიას, გეოლოგიას,აზომვით ნახაზებს, მშენებლობის ნებართვის აღებას, პროექტის მომზადება-შეთანხმებას, კონსტრუქციულ ნახაზებს, ენერგო და წყალგაყვანილობის გეგმებს, შესაბამის მუნიციპალურ სამსახურებში თქვენს წარმომადგენლობას.

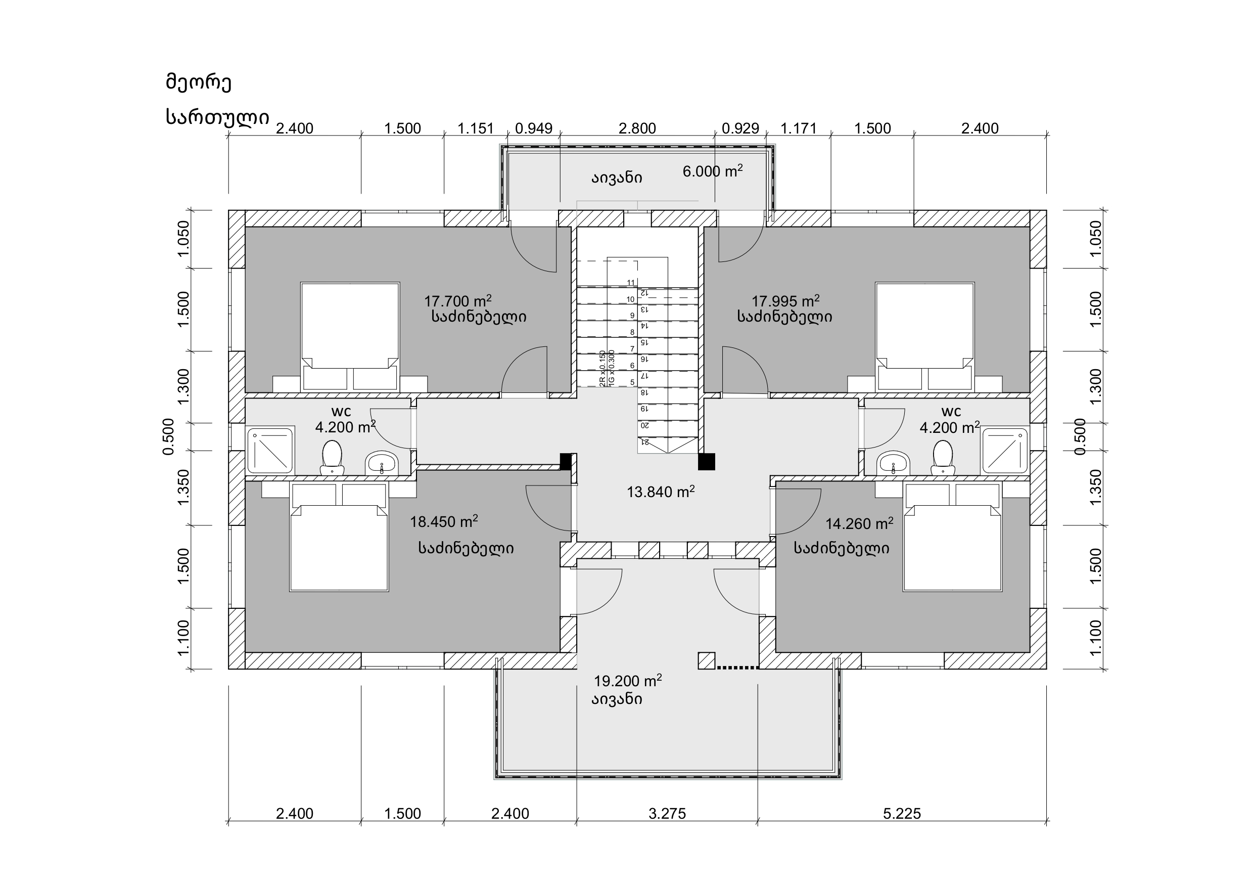
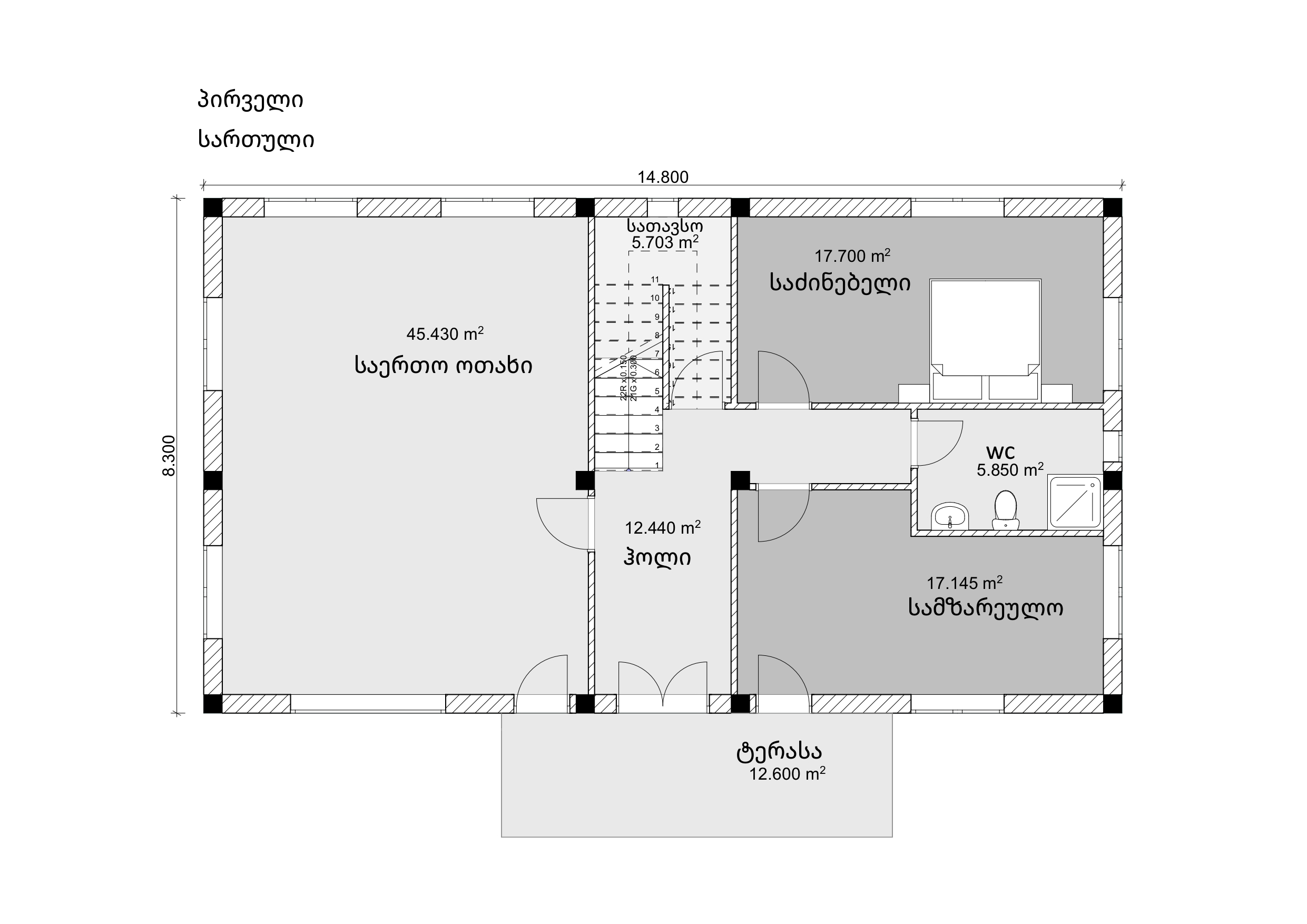
სართულის გეგმები

6 7