1038

560 m²

ავტორი: p1000.ge

პროექტის ღირებულება: 12880 ₾

მშენებლობის ფასი: 344960

პარამეტრები

საცხოვრებელი ფართი

560 მ²

სიმაღლე

12 მ

ნაკვეთის მინიმალური ზომა

0 მ²

სართულები

4

ოთახები

0

პროექტის ღირებულება

12880 ₾

მშენებლობის ფასი

344960 ₾

აღწერა

თანამედროვე სამსართულიანი საცხოვრებელი/სააგარაკე ტიპის ინდივიდუალური სახლი, მოცემული პროექტი მოიცავს, ტოპოგრაფიას, გეოლოგიას,აზომვით ნახაზებს, მშენებლობის ნებართვის აღებას, პროექტის მომზადება-შეთანხმებას, კონსტრუქციულ ნახაზებს, ენერგო და წყალგაყვანილობის გეგმებს, შესაბამის მუნიციპალურ სამსახურებში თქვენს წარმომადგენლობას.

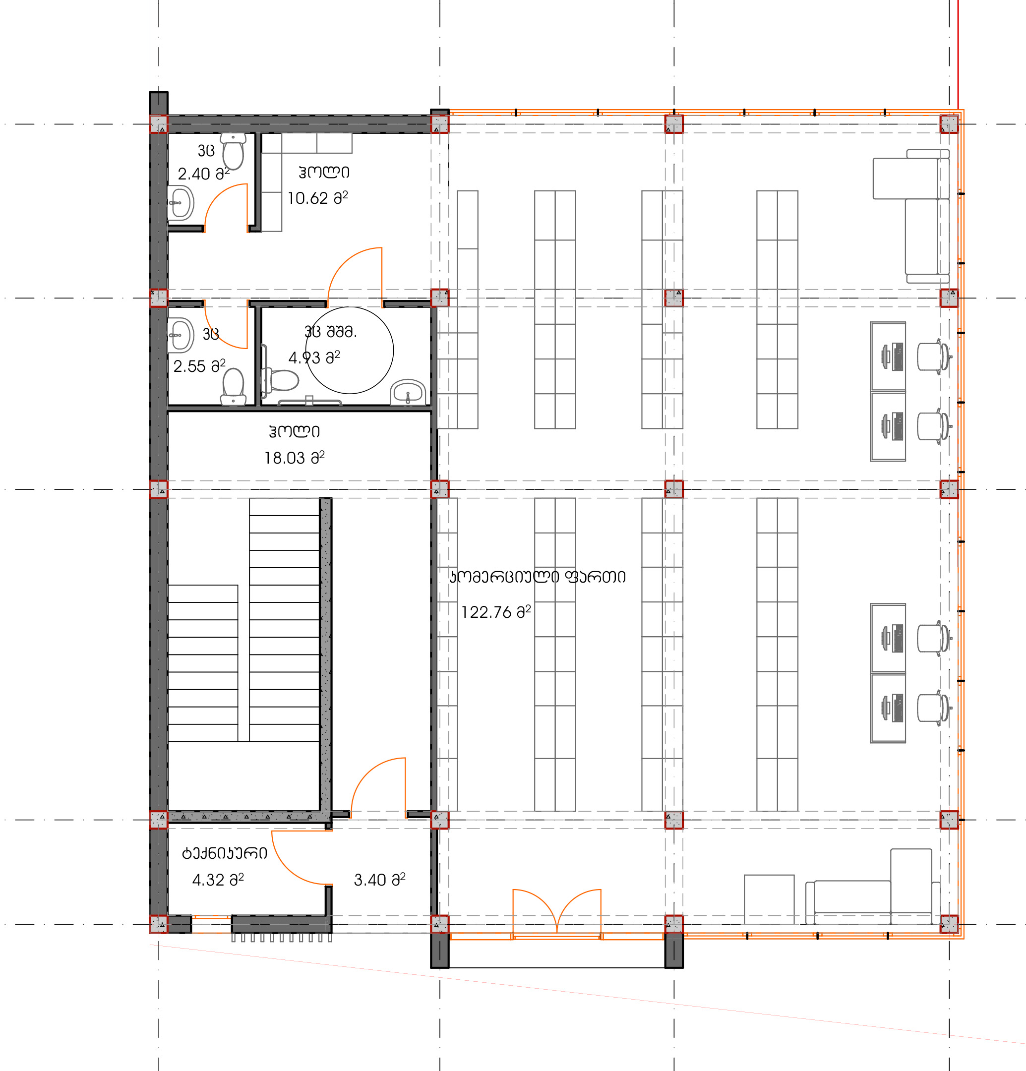
სართულის გეგმები

7 8 9 10