პ103

272 m²

ავტორი: p1000.ge

პროექტის ღირებულება: 6875 ₾

მშენებლობის ფასი: 154000

პარამეტრები

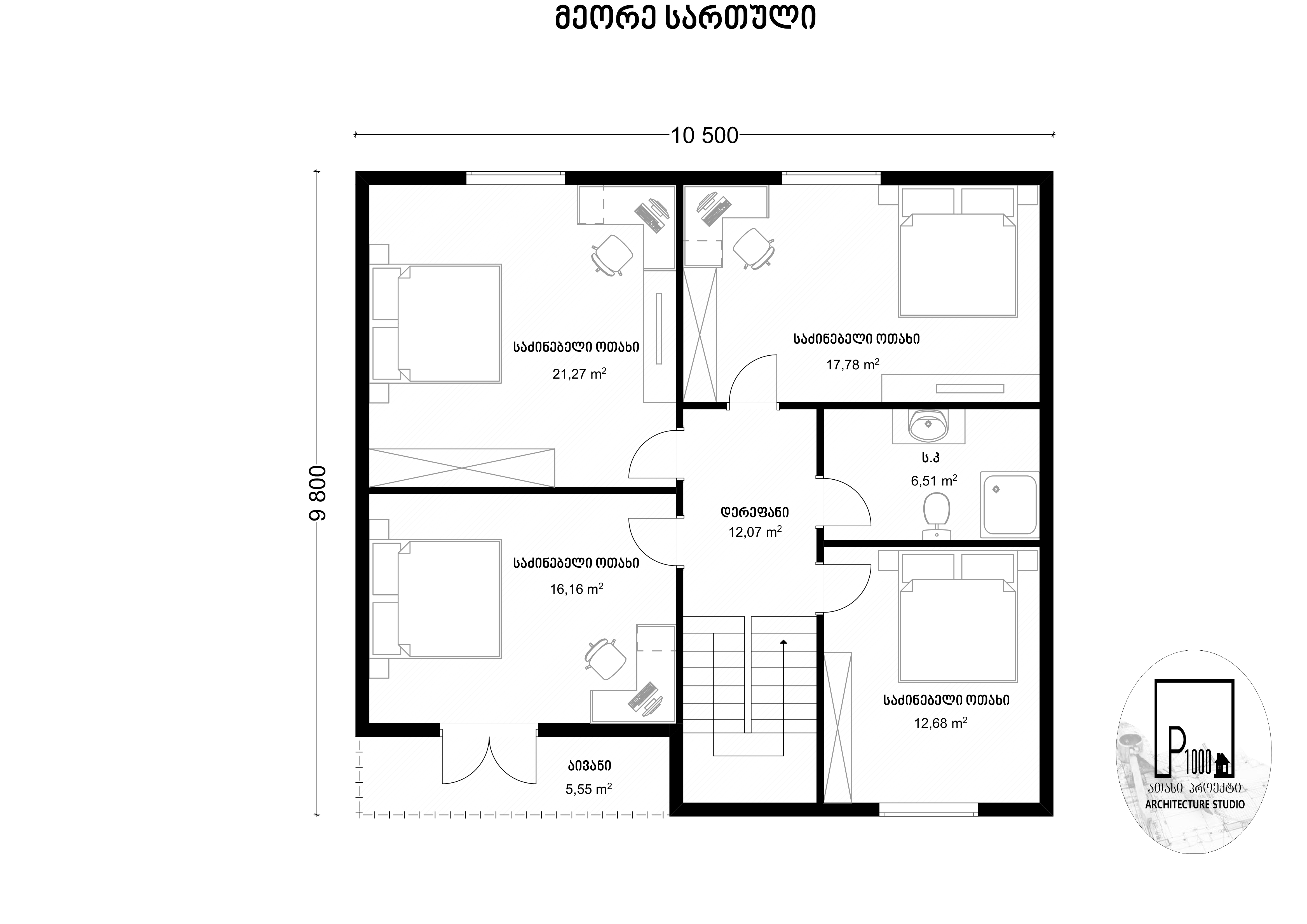
საცხოვრებელი ფართი

245 მ²

შენობის ფართობი

275 მ²

სიმაღლე

6000 მ

ნაკვეთის მინიმალური ზომა

300 მ²

სართულები

2

ოთახები

6

პროექტის ღირებულება

6875 ₾

მშენებლობის ფასი

154000 ₾

აღწერა

​​​​​​​თანამედროვე ორსართულიანი საცხოვრებელი/სააგარაკე ტიპის ინდივიდუალური სახლი, მოცემული პროექტი მოიცავს, ტოპოგრაფიას, გეოლოგიას,აზომვით ნახაზებს, მშენებლობის ნებართვის აღებას, პროექტის მომზადება-შეთანხმებას, კონსტრუქციულ ნახაზებს, ენერგო და წყალგაყვანილობის გეგმებს, შესაბამის მუნიციპალურ სამსახურებში თქვენს წარმომადგენლობას.

სართულის გეგმები

3 4