პ123

190 m²

ავტორი: p1000.ge

პროექტის ღირებულება: 5510 ₾

მშენებლობის ფასი: 95000

პარამეტრები

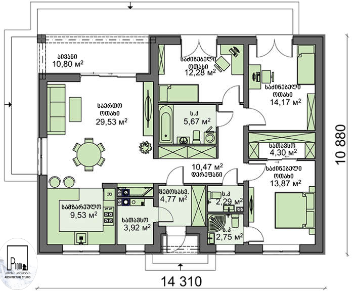
საცხოვრებელი ფართი

170 მ²

შენობის ფართობი

190 მ²

სიმაღლე

3000 მ

ნაკვეთის მინიმალური ზომა

300 მ²

სართულები

1

ოთახები

5

პროექტის ღირებულება

5510 ₾

მშენებლობის ფასი

95000 ₾

აღწერა

​​​​​​​თანამედროვე ორსართულიანი საცხოვრებელი/სააგარაკე ტიპის ინდივიდუალური სახლი, მოცემული პროექტი მოიცავს, ტოპოგრაფიას, გეოლოგიას,აზომვით ნახაზებს, მშენებლობის ნებართვის აღებას, პროექტის მომზადება-შეთანხმებას, კონსტრუქციულ ნახაზებს, ენერგო და წყალგაყვანილობის გეგმებს, შესაბამის მუნიციპალურ სამსახურებში თქვენს წარმომადგენლობას.

სართულის გეგმები

8