პ128

445 m²

ავტორი: p1000.ge

პროექტის ღირებულება: 12905 ₾

მშენებლობის ფასი: 222500

პარამეტრები

საცხოვრებელი ფართი

415 მ²

შენობის ფართობი

445 მ²

სიმაღლე

6000 მ

ნაკვეთის მინიმალური ზომა

300 მ²

სართულები

2

ოთახები

5

პროექტის ღირებულება

12905 ₾

მშენებლობის ფასი

222500 ₾

აღწერა

​​​​​​​თანამედროვე ორსართულიანი საცხოვრებელი/სააგარაკე ტიპის ინდივიდუალური სახლი, მოცემული პროექტი მოიცავს, ტოპოგრაფიას, გეოლოგიას,აზომვით ნახაზებს, მშენებლობის ნებართვის აღებას, პროექტის მომზადება-შეთანხმებას, კონსტრუქციულ ნახაზებს, ენერგო და წყალგაყვანილობის გეგმებს, შესაბამის მუნიციპალურ სამსახურებში თქვენს წარმომადგენლობას.

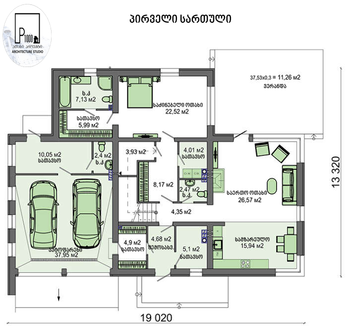
სართულის გეგმები

8 9