პ193

95 m²

ავტორი: p1000.ge

პროექტის ღირებულება: 2755 ₾

მშენებლობის ფასი: 47500

პარამეტრები

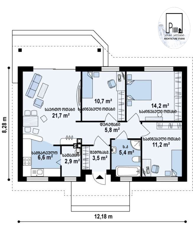
საცხოვრებელი ფართი

75 მ²

შენობის ფართობი

95 მ²

სიმაღლე

3000 მ

ნაკვეთის მინიმალური ზომა

300 მ²

სართულები

1

ოთახები

3

პროექტის ღირებულება

2755 ₾

მშენებლობის ფასი

47500 ₾

აღწერა

თანამედროვე ერთსართულიანი საცხოვრებელი/სააგარაკე ტიპის ინდივიდუალური სახლი, მოცემული პროექტი მოიცავს, ტოპოგრაფიას, გეოლოგიას,აზომვით ნახაზებს, მშენებლობის ნებართვის აღებას, პროექტის მომზადება-შეთანხმებას, კონსტრუქციულ ნახაზებს, ენერგო და წყალგაყვანილობის გეგმებს, შესაბამის მუნიციპალურ სამსახურებში თქვენს წარმომადგენლობას

სართულის გეგმები

7