პ251

255 m²

ავტორი: p1000.ge

პროექტის ღირებულება: 7395 ₾

მშენებლობის ფასი: 127500

პარამეტრები

საცხოვრებელი ფართი

230 მ²

შენობის ფართობი

255 მ²

სიმაღლე

6000 მ

ნაკვეთის მინიმალური ზომა

300 მ²

სართულები

2

ოთახები

7

პროექტის ღირებულება

7395 ₾

მშენებლობის ფასი

127500 ₾

აღწერა

თანამედროვე ორსართულიანი საცხოვრებელი/სააგარაკე ტიპის ინდივიდუალური სახლი, მოცემული პროექტი მოიცავს, ტოპოგრაფიას, გეოლოგიას,აზომვით ნახაზებს, მშენებლობის ნებართვის აღებას, პროექტის მომზადება-შეთანხმებას, კონსტრუქციულ ნახაზებს, ენერგო და წყალგაყვანილობის გეგმებს, შესაბამის მუნიციპალურ სამსახურებში თქვენს წარმომადგენლობას.

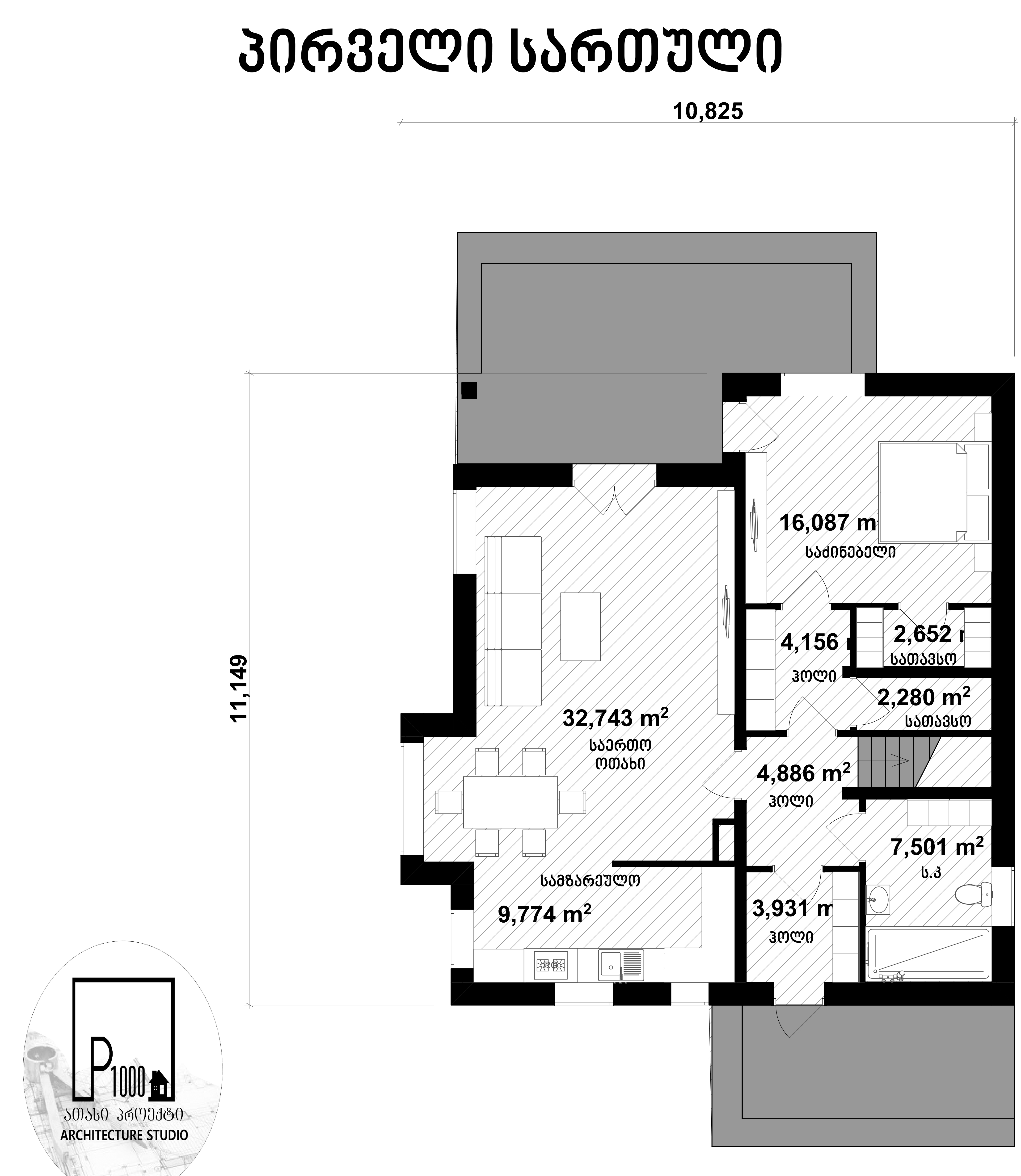
სართულის გეგმები

#არქიტექტურა#პროექტირება#ინდივიდუალურისაცხოვრებელისახლი#სახლი#არქიტექტურულიპროექტი#პროექტი#arqiteqtura#proeqtireba #არქიტექტურა#პროექტირება#ინდივიდუალურისაცხოვრებელისახლი#სახლი#არქიტექტურულიპროექტი#პროექტი#arqiteqtura#proeqtireba