პ257

145 m²

ავტორი: p1000.ge

პროექტის ღირებულება: 3625 ₾

მშენებლობის ფასი: 81200

პარამეტრები

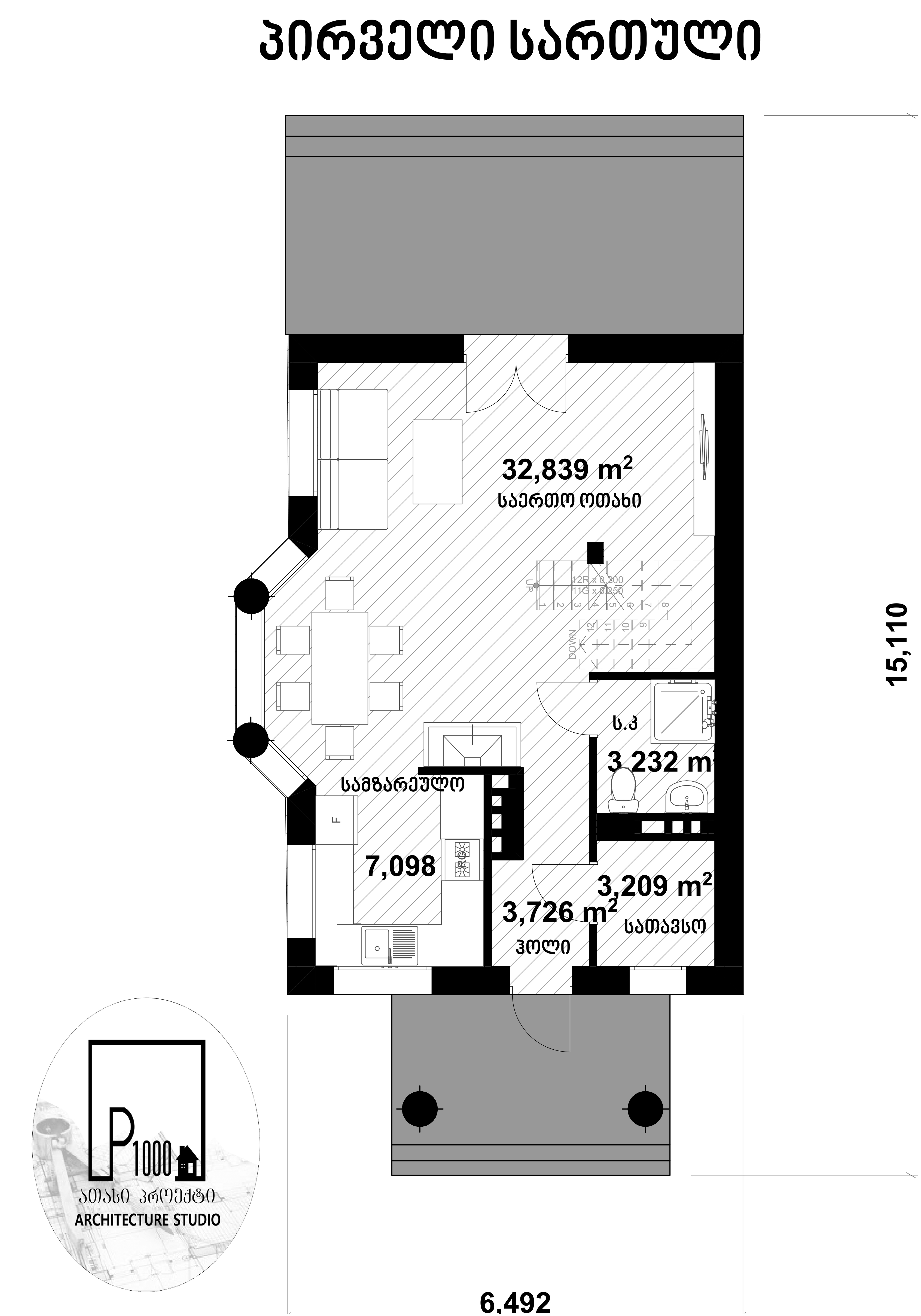
საცხოვრებელი ფართი

120 მ²

შენობის ფართობი

145 მ²

სიმაღლე

6000 მ

ნაკვეთის მინიმალური ზომა

300 მ²

სართულები

2

ოთახები

4

პროექტის ღირებულება

3625 ₾

მშენებლობის ფასი

81200 ₾

აღწერა

თანამედროვე ორსართულიანი საცხოვრებელი/სააგარაკე ტიპის ინდივიდუალური სახლი, მოცემული პროექტი მოიცავს, ტოპოგრაფიას, გეოლოგიას,აზომვით ნახაზებს, მშენებლობის ნებართვის აღებას, პროექტის მომზადება-შეთანხმებას, კონსტრუქციულ ნახაზებს, ენერგო და წყალგაყვანილობის გეგმებს, შესაბამის მუნიციპალურ სამსახურებში თქვენს წარმომადგენლობას.

სართულის გეგმები

4 5