პ273

240 m²

ავტორი: p1000.ge

პროექტის ღირებულება: 6000 ₾

მშენებლობის ფასი: 134400

პარამეტრები

საცხოვრებელი ფართი

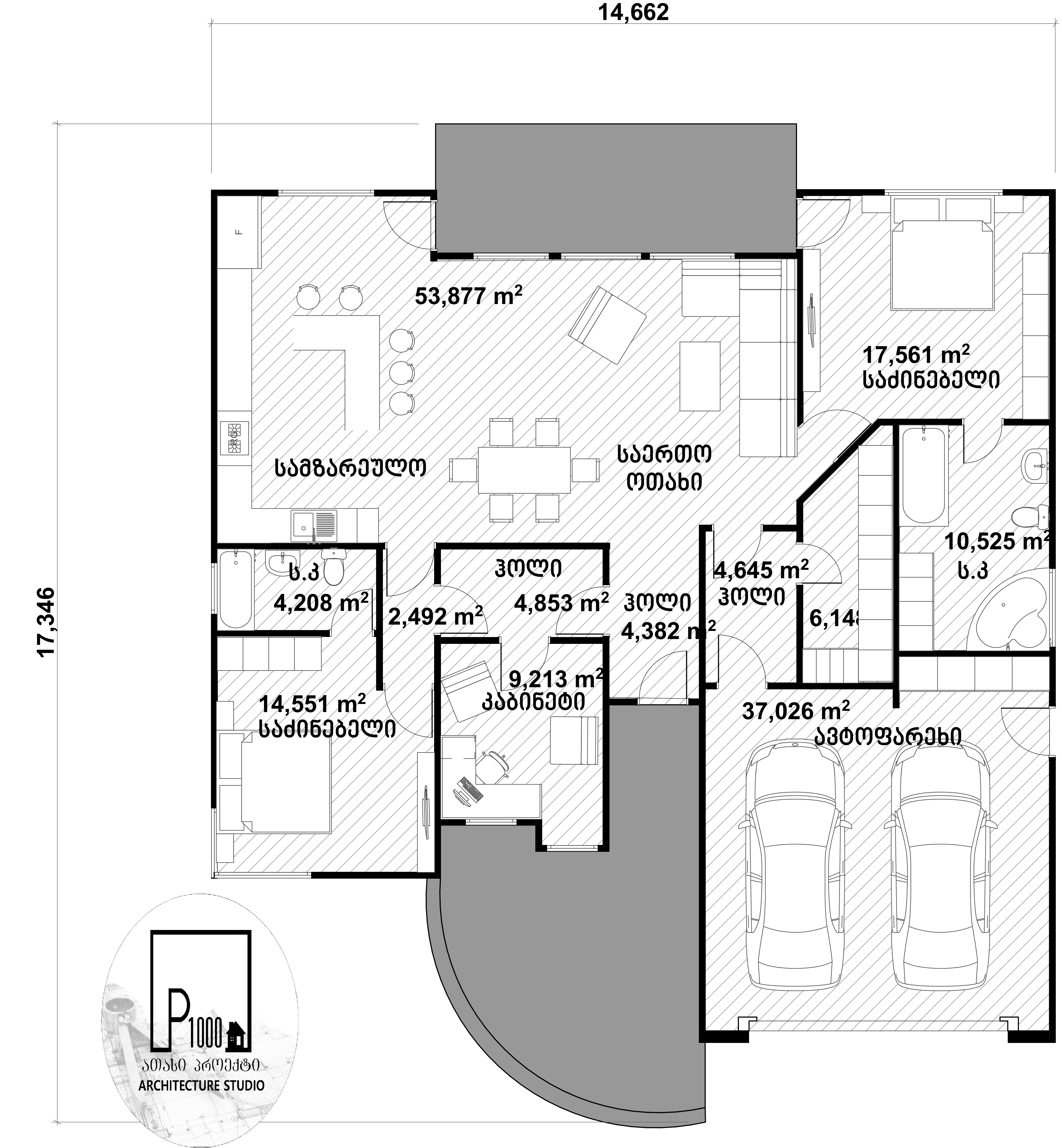
220 მ²

შენობის ფართობი

240 მ²

სიმაღლე

3000 მ

ნაკვეთის მინიმალური ზომა

300 მ²

სართულები

1

ოთახები

4

პროექტის ღირებულება

6000 ₾

მშენებლობის ფასი

134400 ₾

აღწერა

თანამედროვე ერთსართულიანი საცხოვრებელი/სააგარაკე ტიპის ინდივიდუალური სახლი, მოცემული პროექტი მოიცავს, ტოპოგრაფიას, გეოლოგიას,აზომვით ნახაზებს, მშენებლობის ნებართვის აღებას, პროექტის მომზადება-შეთანხმებას, კონსტრუქციულ ნახაზებს, ენერგო და წყალგაყვანილობის გეგმებს, შესაბამის მუნიციპალურ სამსახურებში თქვენს წარმომადგენლობას.

სართულის გეგმები

#არქიტექტურა#პროექტირება#ინდივიდუალურისაცხოვრებელისახლი#სახლი#არქიტექტურულიპროექტი#პროექტი#arqiteqtura#proeqtireba