პ324

200 m²

ავტორი: p1000.ge

პროექტის ღირებულება: 5000 ₾

მშენებლობის ფასი: 112000

პარამეტრები

საცხოვრებელი ფართი

170 მ²

შენობის ფართობი

200 მ²

კუბური მოცულობა

442 მ³

სიმაღლე

6000 მ

ნაკვეთის მინიმალური ზომა

0 მ²

სართულები

2

ოთახები

7

პროექტის ღირებულება

5000 ₾

მშენებლობის ფასი

112000 ₾

აღწერა

​​​​​​​თანამედროვე ორსართულიანი საცხოვრებელი/სააგარაკე ტიპის ინდივიდუალური სახლი, მოცემული პროექტი მოიცავს, ტოპოგრაფიას, გეოლოგიას,აზომვით ნახაზებს, მშენებლობის ნებართვის აღებას, პროექტის მომზადება-შეთანხმებას, კონსტრუქციულ ნახაზებს, ენერგო და წყალგაყვანილობის გეგმებს, შესაბამის მუნიციპალურ სამსახურებში თქვენს წარმომადგენლობას.

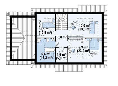
სართულის გეგმები

#არქიტექტურა#პროექტირება#ინდივიდუალურისაცხოვრებელისახლი#სახლი#არქიტექტურულიპროექტი#პროექტი#arqiteqtura#proeqtireba #არქიტექტურა#პროექტირება#ინდივიდუალურისაცხოვრებელისახლი#სახლი#არქიტექტურულიპროექტი#პროექტი#arqiteqtura#proeqtireba