პ58

225 m²

ავტორი: p1000.ge

პროექტის ღირებულება: 5625 ₾

მშენებლობის ფასი: 126000

პარამეტრები

საცხოვრებელი ფართი

200 მ²

შენობის ფართობი

225 მ²

სიმაღლე

6000 მ

ნაკვეთის მინიმალური ზომა

300 მ²

სართულები

2

ოთახები

6

პროექტის ღირებულება

5625 ₾

მშენებლობის ფასი

126000 ₾

აღწერა

​​​​​​​​​​​​​​თანამედროვე ორსართულიანი საცხოვრებელი/სააგარაკე ტიპის ინდივიდუალური სახლი, მოცემული პროექტი მოიცავს, ტოპოგრაფიას, გეოლოგიას,აზომვით ნახაზებს, მშენებლობის ნებართვის აღებას, პროექტის მომზადება-შეთანხმებას, კონსტრუქციულ ნახაზებს, ენერგო და წყალგაყვანილობის გეგმებს, შესაბამის მუნიციპალურ სამსახურებში თქვენს წარმომადგენლობას.

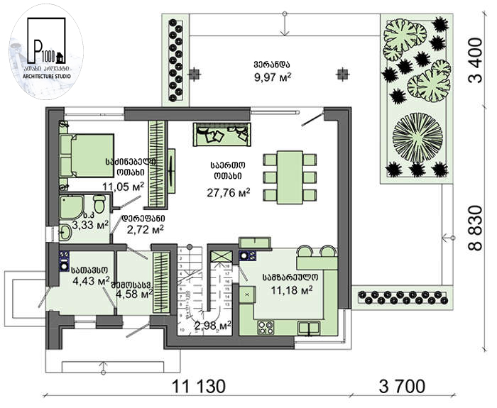
სართულის გეგმები

8 9