პ60

100 m²

ავტორი: p1000.ge

პროექტის ღირებულება: 2500 ₾

მშენებლობის ფასი: 56000

პარამეტრები

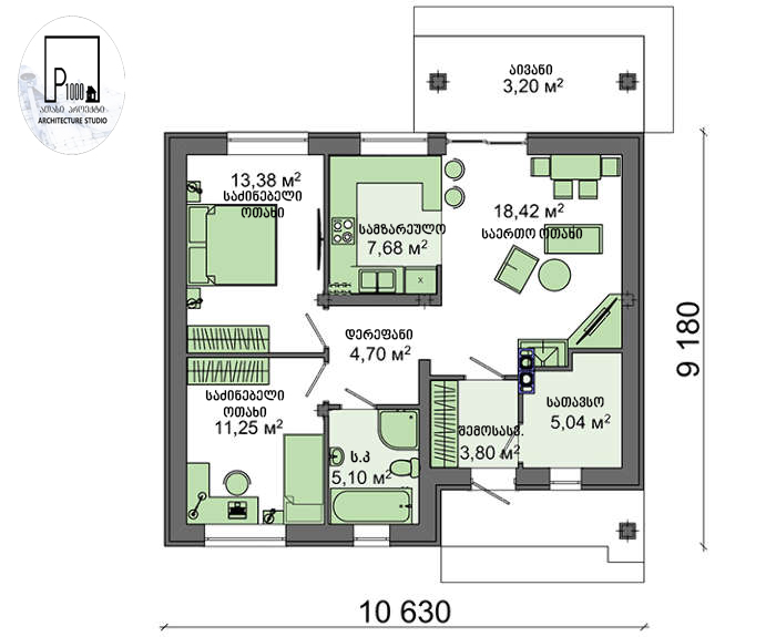
საცხოვრებელი ფართი

80 მ²

შენობის ფართობი

100 მ²

სიმაღლე

3500 მ

ნაკვეთის მინიმალური ზომა

300 მ²

სართულები

1

ოთახები

4

პროექტის ღირებულება

2500 ₾

მშენებლობის ფასი

56000 ₾

აღწერა

​​​​​​​თანამედროვე ერთსართულიანი საცხოვრებელი/სააგარაკე ტიპის ინდივიდუალური სახლი, მოცემული პროექტი მოიცავს, ტოპოგრაფიას, გეოლოგიას,აზომვით ნახაზებს, მშენებლობის ნებართვის აღებას, პროექტის მომზადება-შეთანხმებას, კონსტრუქციულ ნახაზებს, ენერგო და წყალგაყვანილობის გეგმებს, შესაბამის მუნიციპალურ სამსახურებში თქვენს წარმომადგენლობას.

სართულის გეგმები

7