p613

160 m²

ავტორი: p1000.ge

პროექტის ღირებულება: 4000 ₾

მშენებლობის ფასი: 89600

პარამეტრები

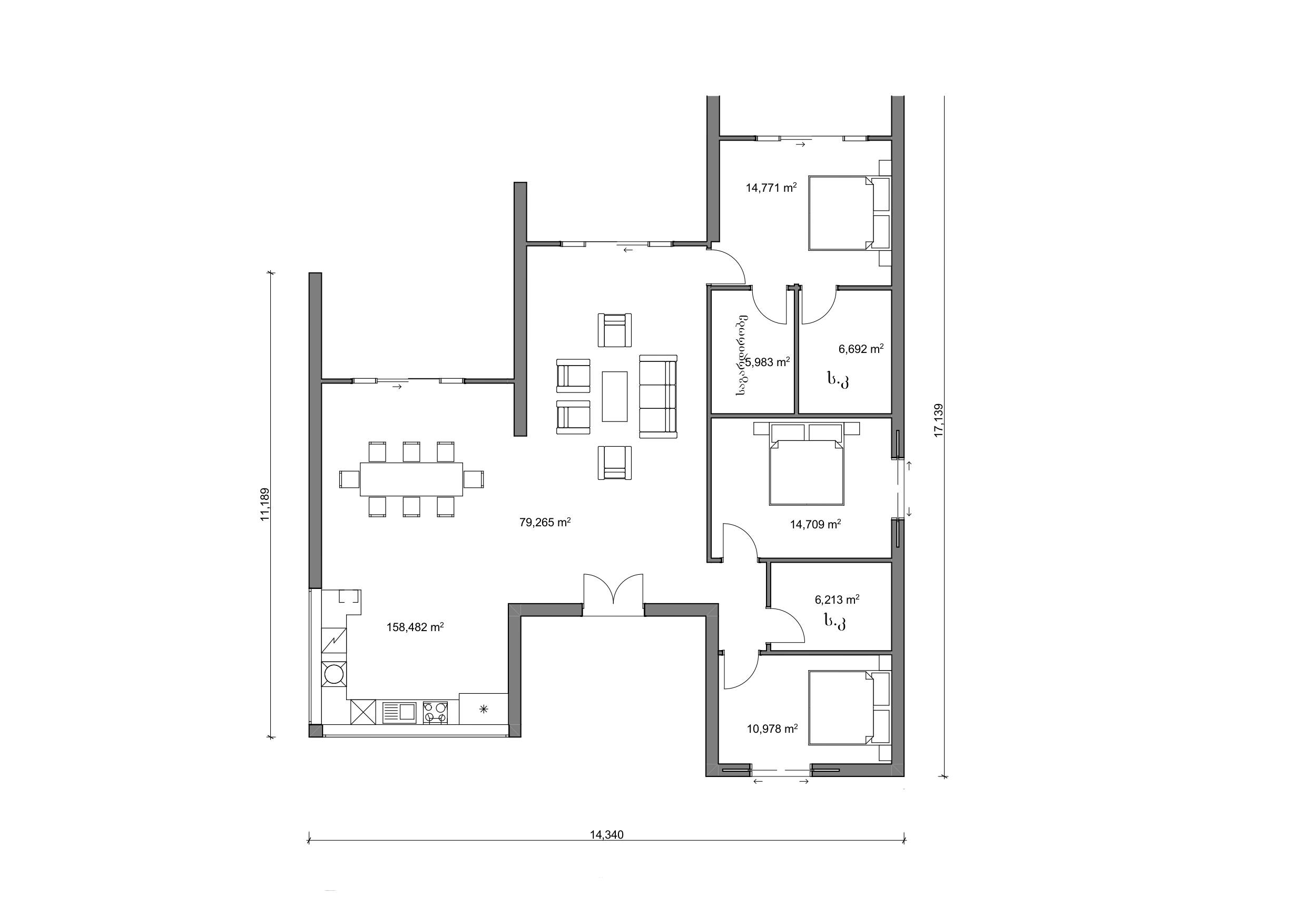
საცხოვრებელი ფართი

140 მ²

შენობის ფართობი

160 მ²

კუბური მოცულობა

714 მ³

სიმაღლე

3000 მ

ნაკვეთის მინიმალური ზომა

0 მ²

სართულები

1

ოთახები

4

პროექტის ღირებულება

4000 ₾

მშენებლობის ფასი

89600 ₾

აღწერა

​​​​​​​​​​​​​​​​​​​​​​​​​​​​თანამედროვე ერთსართულიანი საცხოვრებელი/სააგარაკე ტიპის ინდივიდუალური სახლი, მოცემული პროექტი მოიცავს, ტოპოგრაფიას, გეოლოგიას,აზომვით ნახაზებს, მშენებლობის ნებართვის აღებას, პროექტის მომზადება-შეთანხმებას, კონსტრუქციულ ნახაზებს, ენერგო და წყალგაყვანილობის გეგმებს, შესაბამის მუნიციპალურ სამსახურებში თქვენს წარმომადგენლობას.

სართულის გეგმები

1