პ614

220 m²

ავტორი:

პროექტის ღირებულება: 5500 ₾

მშენებლობის ფასი: 123200

პარამეტრები

საცხოვრებელი ფართი

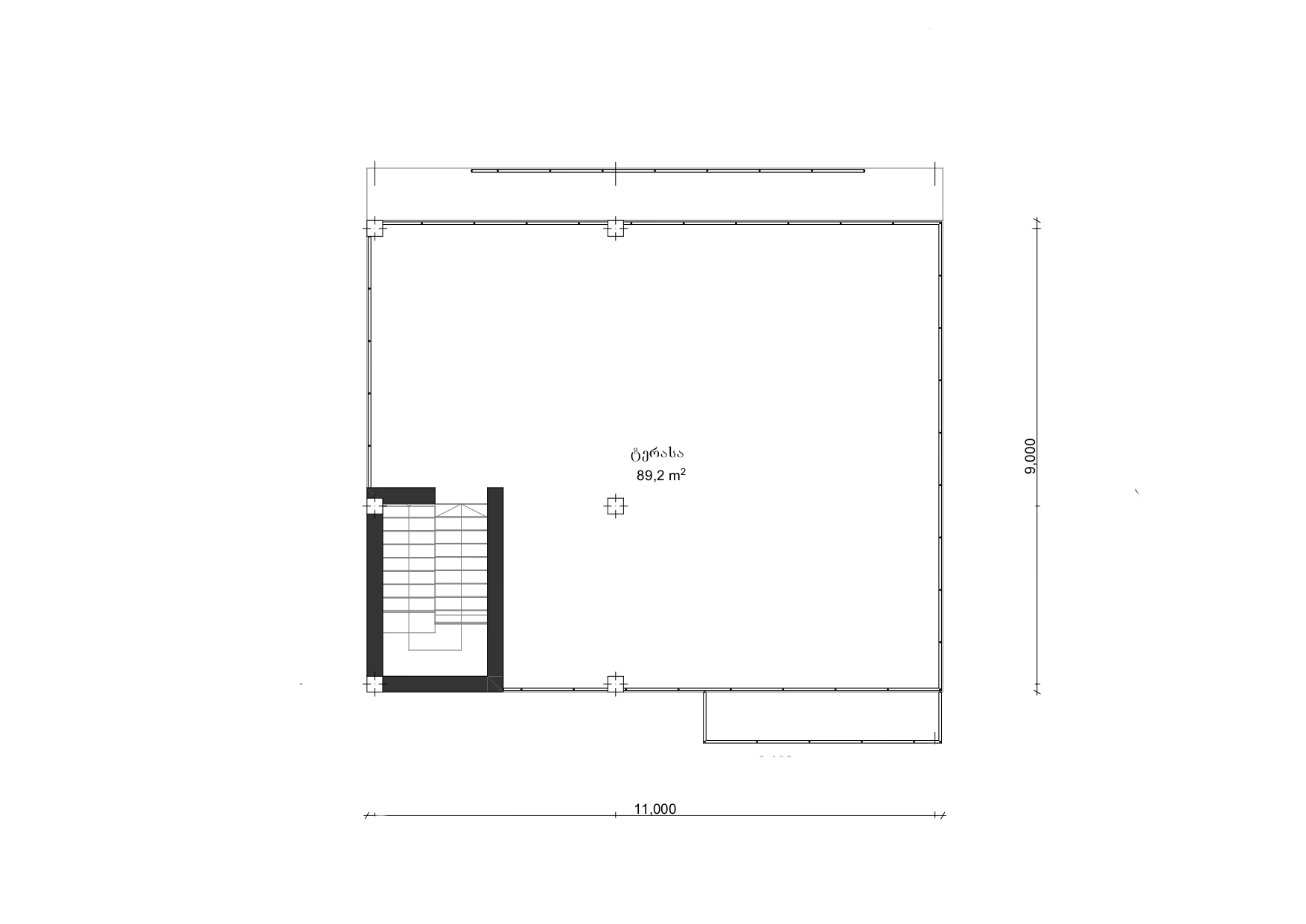
190 მ²

შენობის ფართობი

220 მ²

კუბური მოცულობა

594 მ³

სიმაღლე

6000 მ

ნაკვეთის მინიმალური ზომა

0 მ²

სართულები

2

ოთახები

7

პროექტის ღირებულება

5500 ₾

მშენებლობის ფასი

123200 ₾

აღწერა

​​​​​​​​​​​​​​​​​​​​​თანამედროვე ორსართულიანი საცხოვრებელი/სააგარაკე ტიპის ინდივიდუალური სახლი, მოცემული პროექტი მოიცავს, ტოპოგრაფიას, გეოლოგიას,აზომვით ნახაზებს, მშენებლობის ნებართვის აღებას, პროექტის მომზადება-შეთანხმებას, კონსტრუქციულ ნახაზებს, ენერგო და წყალგაყვანილობის გეგმებს, შესაბამის მუნიციპალურ სამსახურებში თქვენს წარმომადგენლობას.

სართულის გეგმები

1 2 3