p621

668 m²

ავტორი: p1000.ge

პროექტის ღირებულება: 16700 ₾

მშენებლობის ფასი: 374080

პარამეტრები

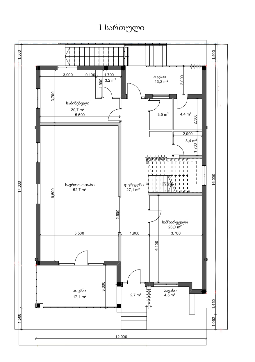
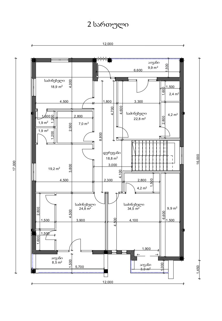
საცხოვრებელი ფართი

620 მ²

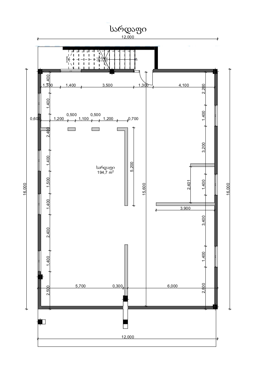
შენობის ფართობი

668 მ²

სიმაღლე

6000 მ

ნაკვეთის მინიმალური ზომა

0 მ²

სართულები

2

ოთახები

9

პროექტის ღირებულება

16700 ₾

მშენებლობის ფასი

374080 ₾

აღწერა

​​​​​​​​​​​​​​თანამედროვე ორსართულიანი საცხოვრებელი/სააგარაკე ტიპის ინდივიდუალური სახლი, მოცემული პროექტი მოიცავს, ტოპოგრაფიას, გეოლოგიას,აზომვით ნახაზებს, მშენებლობის ნებართვის აღებას, პროექტის მომზადება-შეთანხმებას, კონსტრუქციულ ნახაზებს, ენერგო და წყალგაყვანილობის გეგმებს, შესაბამის მუნიციპალურ სამსახურებში თქვენს წარმომადგენლობას.

სართულის გეგმები

1 2 3 4