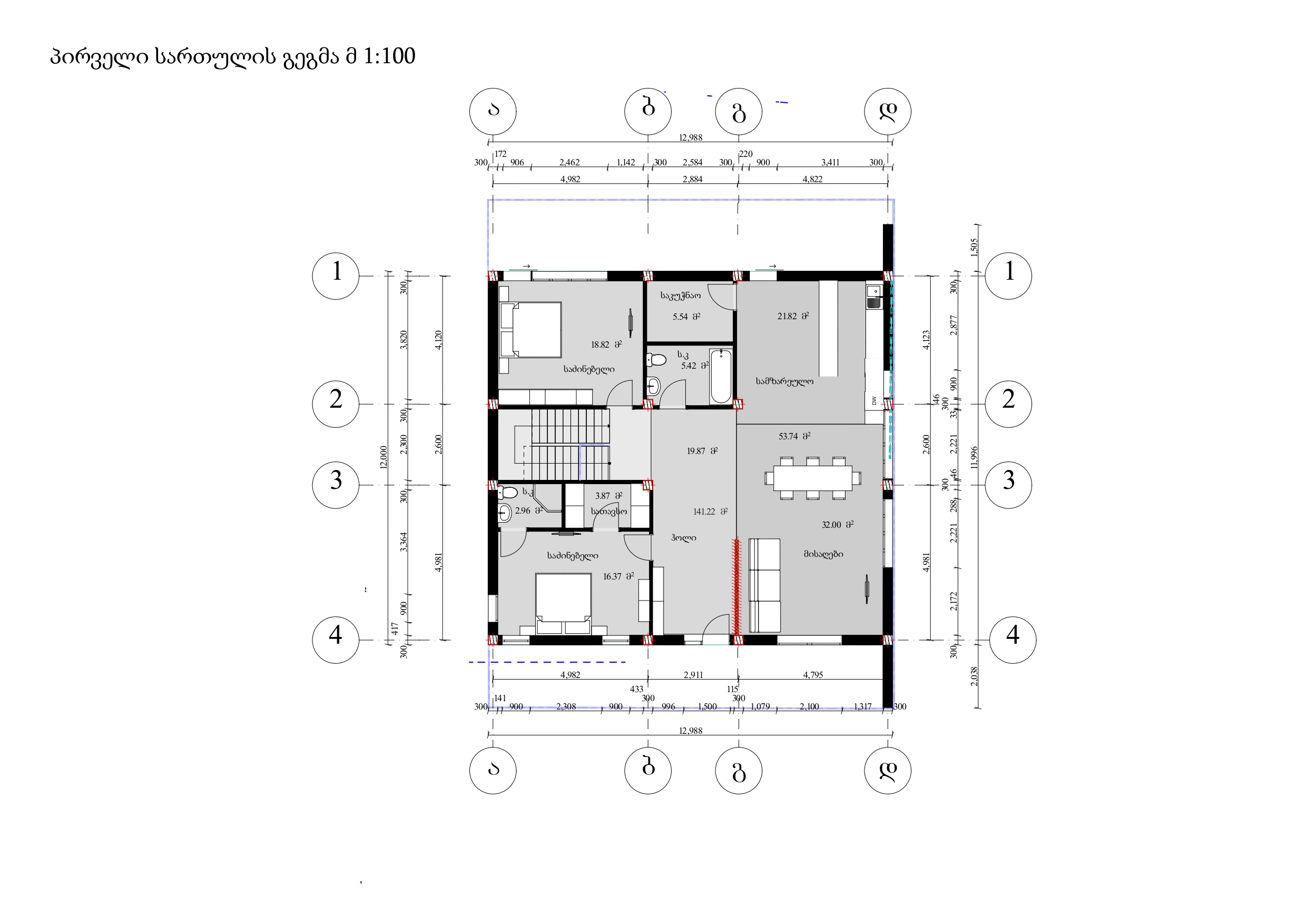
p630

290 m²

ავტორი: p1000.ge

პროექტის ღირებულება: 7250 ₾

მშენებლობის ფასი: 162400

პარამეტრები

საცხოვრებელი ფართი

195 მ²

შენობის ფართობი

290 მ²

სიმაღლე

6000 მ

ნაკვეთის მინიმალური ზომა

0 მ²

სართულები

2

ოთახები

6

პროექტის ღირებულება

7250 ₾

მშენებლობის ფასი

162400 ₾

აღწერა

​​​​​​​​​​​​​​​​​​​​​​​​​​​​​​​​​​​თანამედროვე ორსართულიანი საცხოვრებელი/სააგარაკე ტიპის ინდივიდუალური სახლი, მოცემული პროექტი მოიცავს, ტოპოგრაფიას, გეოლოგიას,აზომვით ნახაზებს, მშენებლობის ნებართვის აღებას, პროექტის მომზადება-შეთანხმებას, კონსტრუქციულ ნახაზებს, ენერგო და წყალგაყვანილობის გეგმებს, შესაბამის მუნიციპალურ სამსახურებში თქვენს წარმომადგენლობას.

სართულის გეგმები

1 2