p632

256 m²

ავტორი: p1100.ge

პროექტის ღირებულება: 6400 ₾

მშენებლობის ფასი: 143360

პარამეტრები

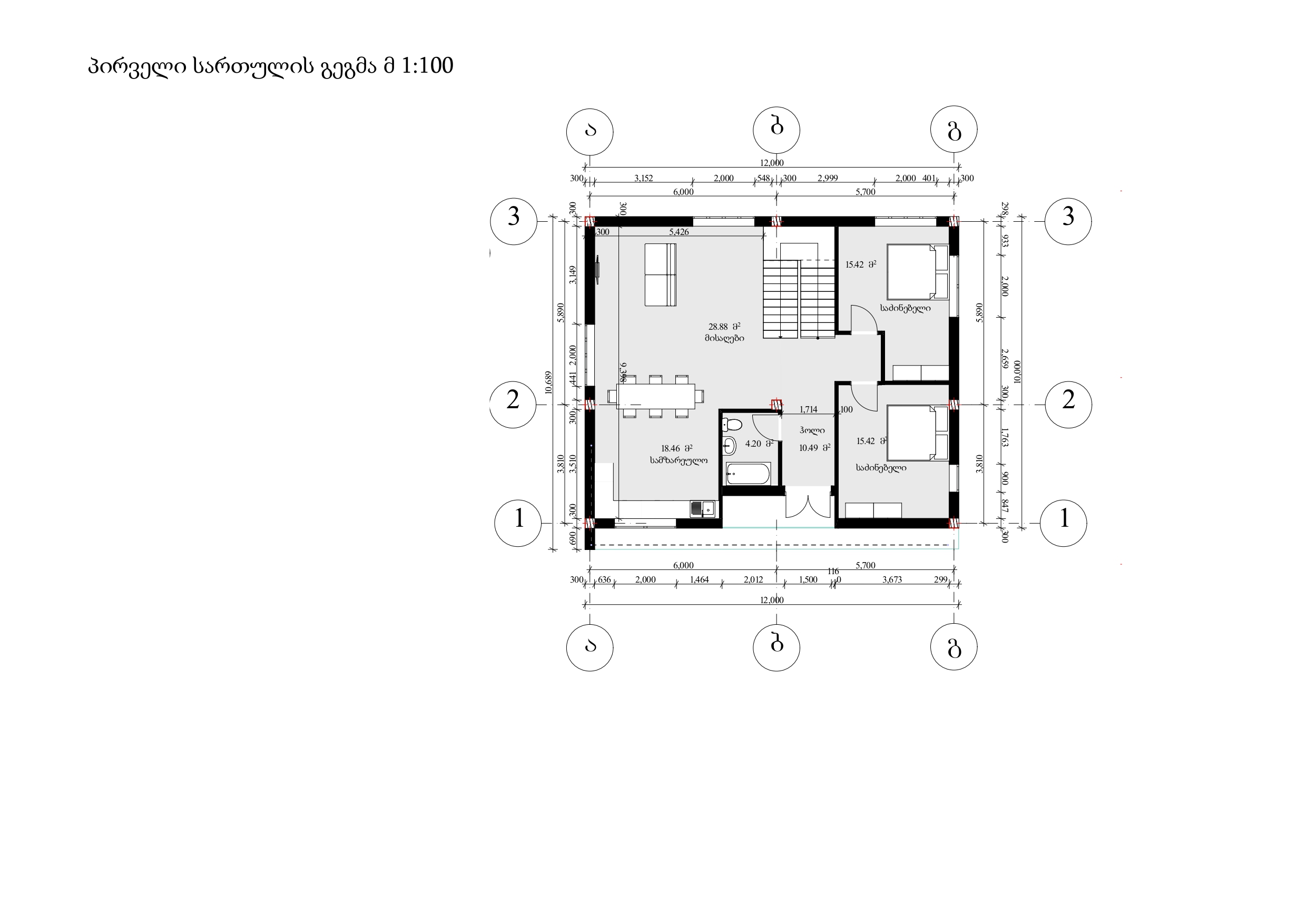
საცხოვრებელი ფართი

169 მ²

შენობის ფართობი

256 მ²

სიმაღლე

6000 მ

ნაკვეთის მინიმალური ზომა

0 მ²

სართულები

2

ოთახები

6

პროექტის ღირებულება

6400 ₾

მშენებლობის ფასი

143360 ₾

აღწერა

​​​​​​​​​​​​​​​​​​​​​​​​​​​​​​​​​​​​​​​​​​თანამედროვე ორსართულიანი საცხოვრებელი/სააგარაკე ტიპის ინდივიდუალური სახლი, მოცემული პროექტი მოიცავს, ტოპოგრაფიას, გეოლოგიას,აზომვით ნახაზებს, მშენებლობის ნებართვის აღებას, პროექტის მომზადება-შეთანხმებას, კონსტრუქციულ ნახაზებს, ენერგო და წყალგაყვანილობის გეგმებს, შესაბამის მუნიციპალურ სამსახურებში თქვენს წარმომადგენლობას.

სართულის გეგმები

1 2