p633

206 m²

ავტორი: p1000.ge

პროექტის ღირებულება: 5150 ₾

მშენებლობის ფასი: 115360

პარამეტრები

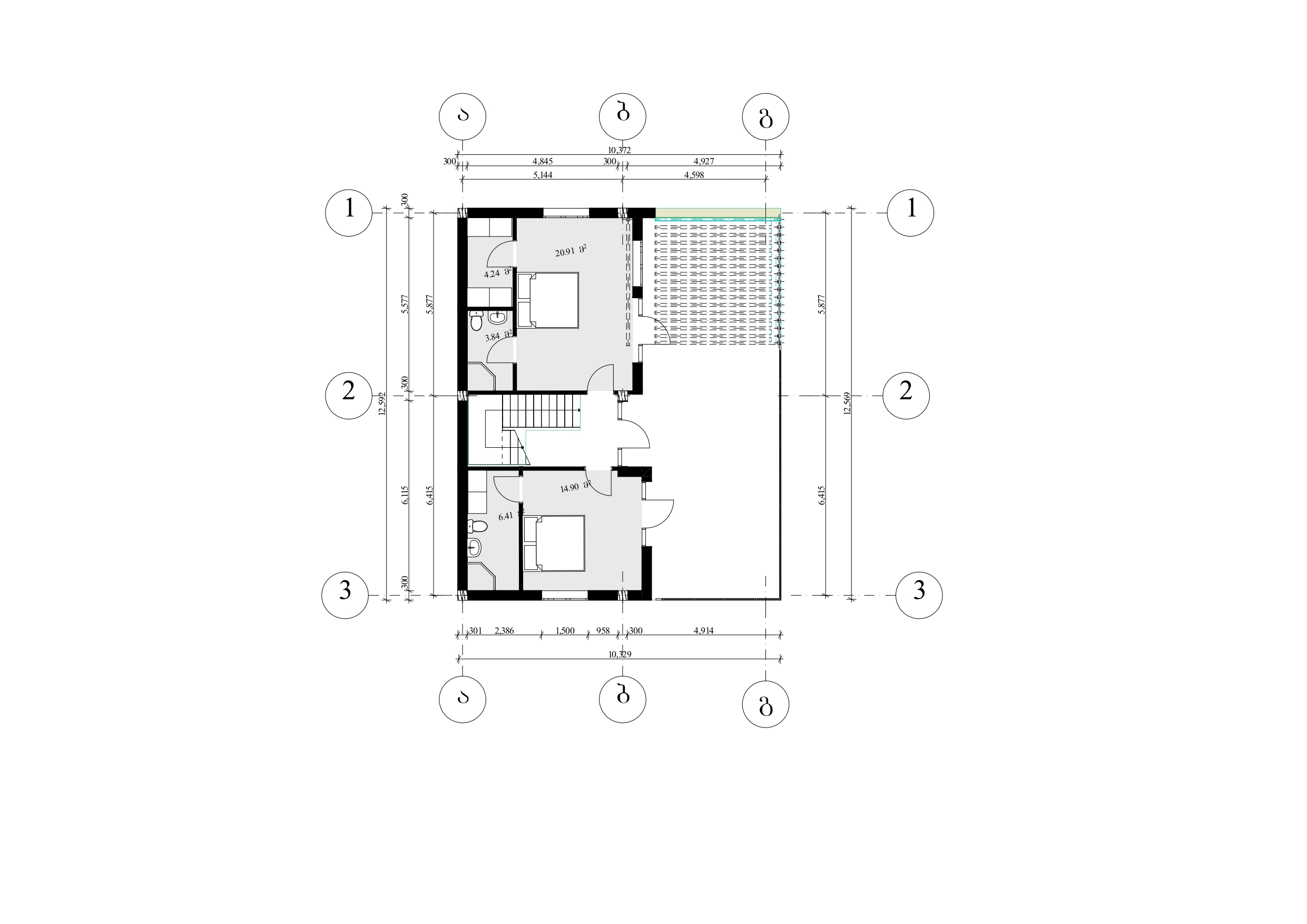
საცხოვრებელი ფართი

174 მ²

შენობის ფართობი

206 მ²

სიმაღლე

6000 მ

ნაკვეთის მინიმალური ზომა

0 მ²

სართულები

2

ოთახები

6

პროექტის ღირებულება

5150 ₾

მშენებლობის ფასი

115360 ₾

აღწერა

​​​​​​​​​​​​​​​​​​​​​​​​​​​​​​​​​​​თანამედროვე ორსართულიანი საცხოვრებელი/სააგარაკე ტიპის ინდივიდუალური სახლი, მოცემული პროექტი მოიცავს, ტოპოგრაფიას, გეოლოგიას,აზომვით ნახაზებს, მშენებლობის ნებართვის აღებას, პროექტის მომზადება-შეთანხმებას, კონსტრუქციულ ნახაზებს, ენერგო და წყალგაყვანილობის გეგმებს, შესაბამის მუნიციპალურ სამსახურებში თქვენს წარმომადგენლობას.

სართულის გეგმები

1 2