p634

200 m²

ავტორი: p1000.ge

პროექტის ღირებულება: 5000 ₾

მშენებლობის ფასი: 111600

პარამეტრები

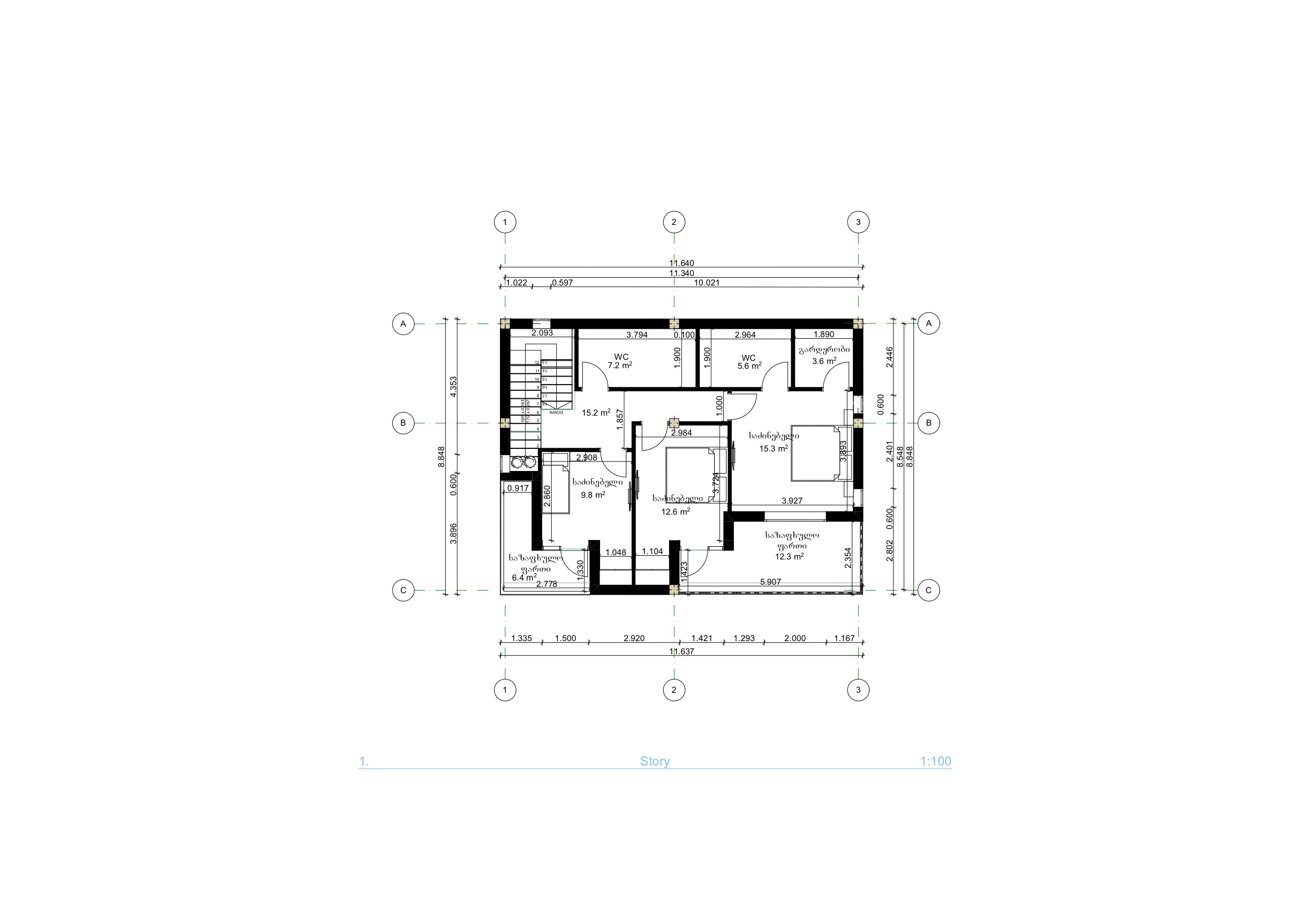
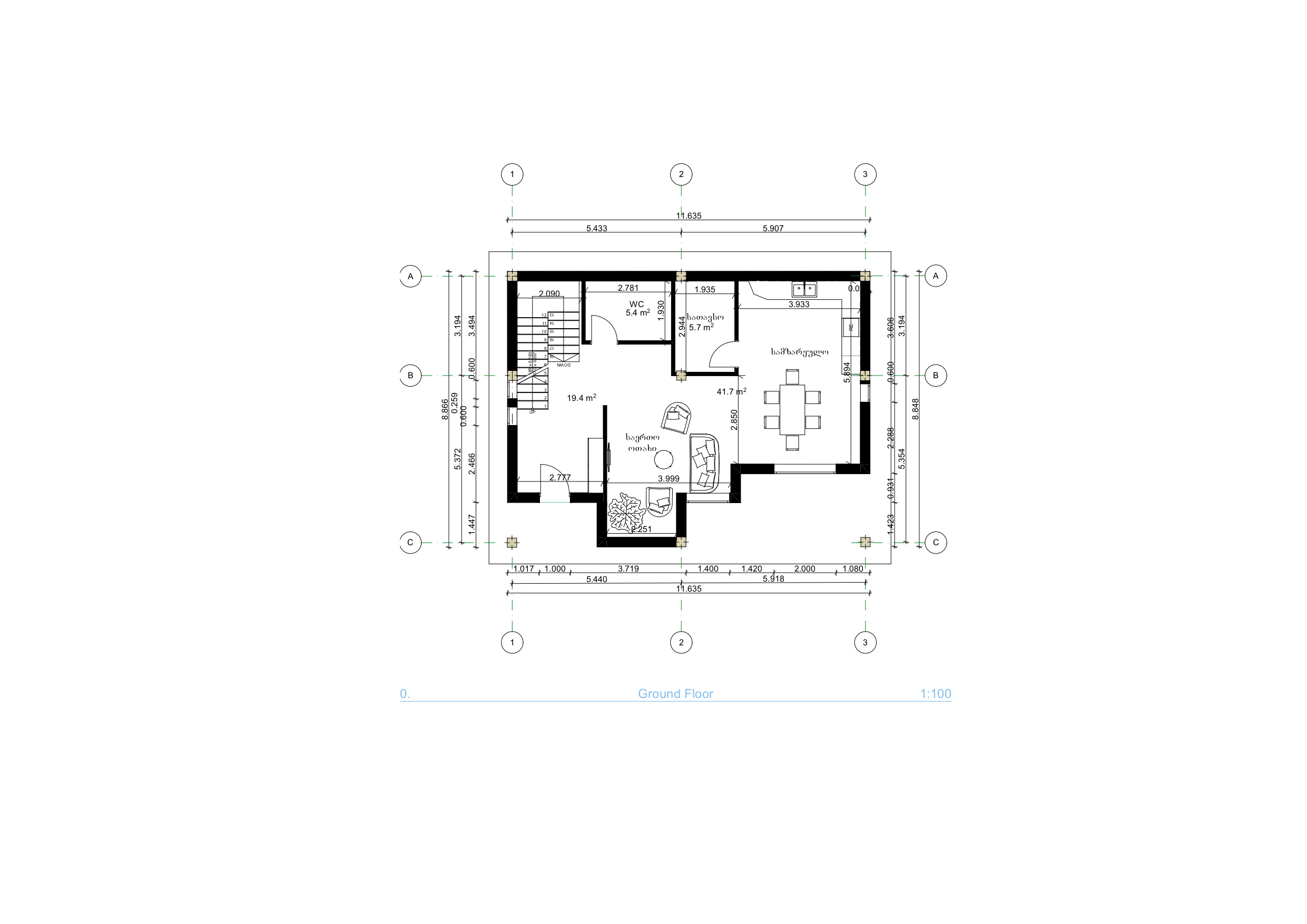
საცხოვრებელი ფართი

150 მ²

შენობის ფართობი

200 მ²

სიმაღლე

6000 მ

ნაკვეთის მინიმალური ზომა

0 მ²

სართულები

2

ოთახები

5

პროექტის ღირებულება

5000 ₾

მშენებლობის ფასი

111600 ₾

აღწერა

​​​​​​​​​​​​​​​​​​​​​​​​​​​​​​​​​​​​​​​​​​თანამედროვე ორსართულიანი საცხოვრებელი/სააგარაკე ტიპის ინდივიდუალური სახლი, მოცემული პროექტი მოიცავს, ტოპოგრაფიას, გეოლოგიას,აზომვით ნახაზებს, მშენებლობის ნებართვის აღებას, პროექტის მომზადება-შეთანხმებას, კონსტრუქციულ ნახაზებს, ენერგო და წყალგაყვანილობის გეგმებს, შესაბამის მუნიციპალურ სამსახურებში თქვენს წარმომადგენლობას.

სართულის გეგმები

1 2