p636

191 m²

ავტორი: p1000.ge

პროექტის ღირებულება: 4775 ₾

მშენებლობის ფასი: 106960

პარამეტრები

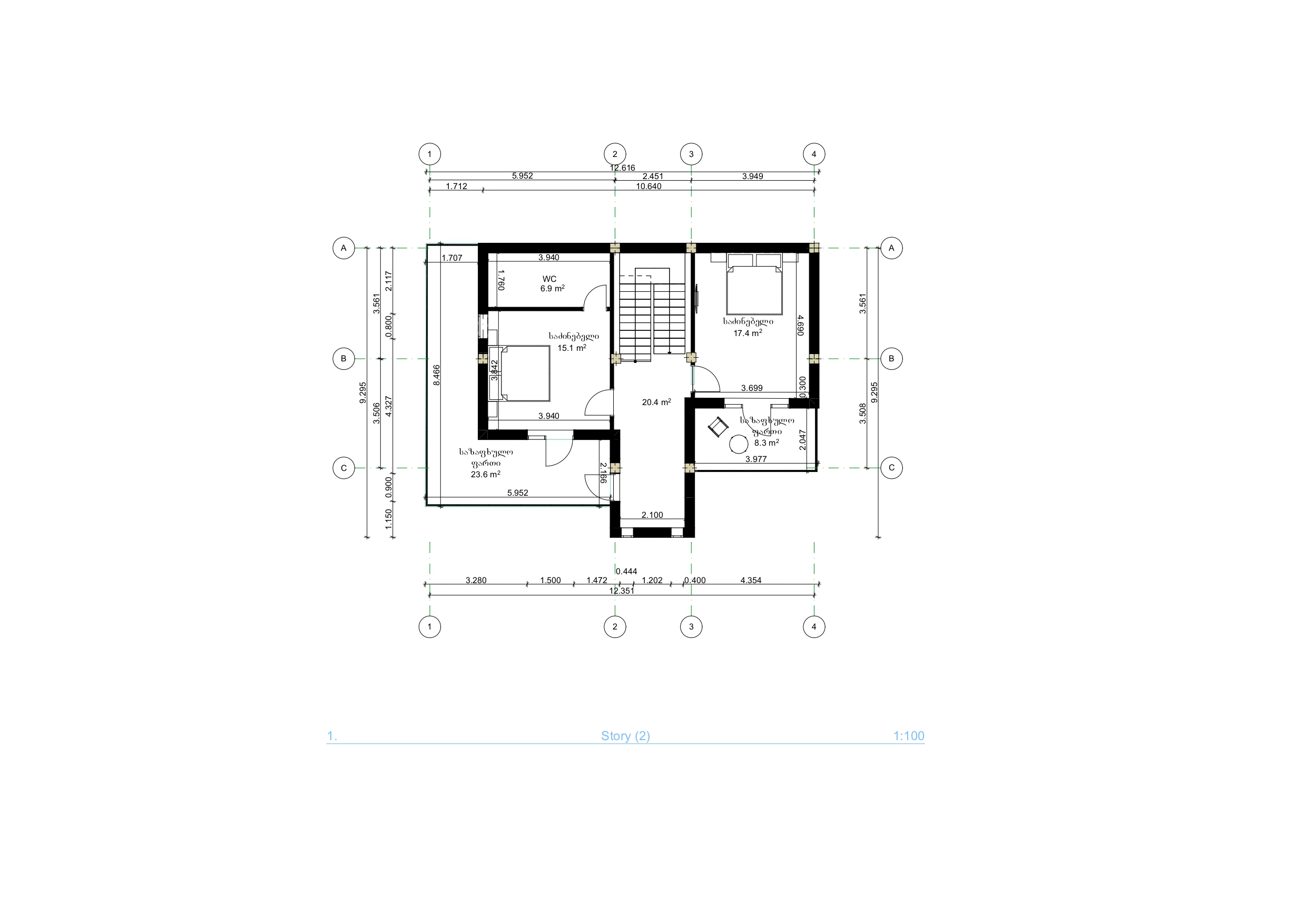
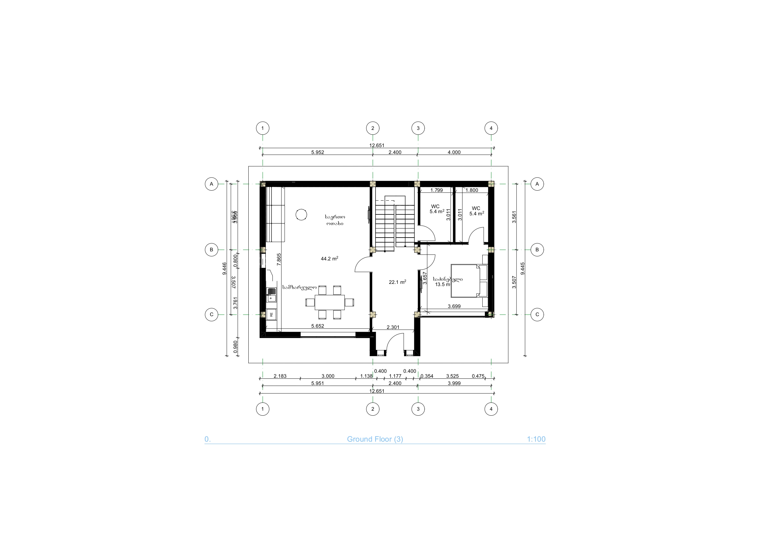
საცხოვრებელი ფართი

142 მ²

შენობის ფართობი

191 მ²

სიმაღლე

6000 მ

ნაკვეთის მინიმალური ზომა

0 მ²

სართულები

2

ოთახები

5

პროექტის ღირებულება

4775 ₾

მშენებლობის ფასი

106960 ₾

აღწერა

​​​​​​​თანამედროვე ორსართულიანი საცხოვრებელი/სააგარაკე ტიპის ინდივიდუალური სახლი, მოცემული პროექტი მოიცავს, ტოპოგრაფიას, გეოლოგიას,აზომვით ნახაზებს, მშენებლობის ნებართვის აღებას, პროექტის მომზადება-შეთანხმებას, კონსტრუქციულ ნახაზებს, ენერგო და წყალგაყვანილობის გეგმებს, შესაბამის მუნიციპალურ სამსახურებში თქვენს წარმომადგენლობას.

სართულის გეგმები

1 2