P649

252 m²

ავტორი: P1000.GE

პროექტის ღირებულება: 6300 ₾

მშენებლობის ფასი: 141120

პარამეტრები

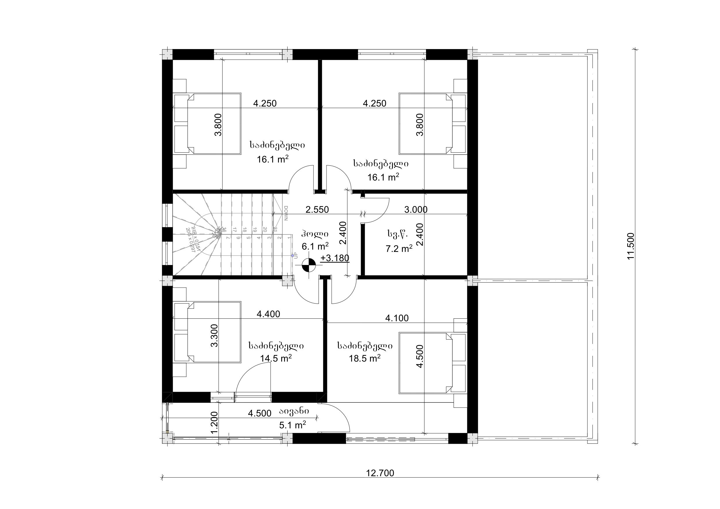
საცხოვრებელი ფართი

212 მ²

შენობის ფართობი

252 მ²

სიმაღლე

6000 მ

ნაკვეთის მინიმალური ზომა

0 მ²

სართულები

2

ოთახები

6

პროექტის ღირებულება

6300 ₾

მშენებლობის ფასი

141120 ₾

აღწერა

​​​​​​​​​​​​​​​​​​​​​​​​​​​​​​​​​​​​​​​​​​​​​​​​​თანამედროვე ორსართულიანი საცხოვრებელი/სააგარაკე ტიპის ინდივიდუალური სახლი, მოცემული პროექტი მოიცავს, ტოპოგრაფიას, გეოლოგიას,აზომვით ნახაზებს, მშენებლობის ნებართვის აღებას, პროექტის მომზადება-შეთანხმებას, კონსტრუქციულ ნახაზებს, ენერგო და წყალგაყვანილობის გეგმებს, შესაბამის მუნიციპალურ სამსახურებში თქვენს წარმომადგენლობას.

სართულის გეგმები

1 2