პ80

125 m²

ავტორი: p1000.ge

პროექტის ღირებულება: 3125 ₾

მშენებლობის ფასი: 70000

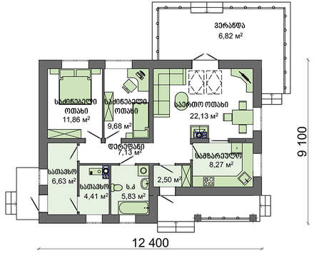
პარამეტრები

საცხოვრებელი ფართი

105 მ²

შენობის ფართობი

125 მ²

სიმაღლე

3000 მ

ნაკვეთის მინიმალური ზომა

300 მ²

სართულები

1

ოთახები

4

პროექტის ღირებულება

3125 ₾

მშენებლობის ფასი

70000 ₾

აღწერა

თანამედროვე ერთსართულიანი საცხოვრებელი/სააგარაკე ტიპის ინდივიდუალური სახლი, მოცემული პროექტი მოიცავს, ტოპოგრაფიას, გეოლოგიას,აზომვით ნახაზებს, მშენებლობის ნებართვის აღებას, პროექტის მომზადება-შეთანხმებას, კონსტრუქციულ ნახაზებს, ენერგო და წყალგაყვანილობის გეგმებს, შესაბამის მუნიციპალურ სამსახურებში თქვენს წარმომადგენლობას.

სართულის გეგმები

4