პ81

150 m²

ავტორი: p1000.ge

პროექტის ღირებულება: 3750 ₾

მშენებლობის ფასი: 84000

პარამეტრები

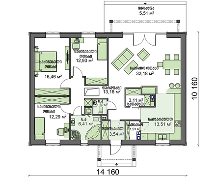
საცხოვრებელი ფართი

130 მ²

შენობის ფართობი

150 მ²

სიმაღლე

3000 მ

ნაკვეთის მინიმალური ზომა

300 მ²

სართულები

1

ოთახები

5

პროექტის ღირებულება

3750 ₾

მშენებლობის ფასი

84000 ₾

აღწერა

თანამედროვე ერთსართულიანი საცხოვრებელი/სააგარაკე ტიპის ინდივიდუალური სახლი, მოცემული პროექტი მოიცავს, ტოპოგრაფიას, გეოლოგიას,აზომვით ნახაზებს, მშენებლობის ნებართვის აღებას, პროექტის მომზადება-შეთანხმებას, კონსტრუქციულ ნახაზებს, ენერგო და წყალგაყვანილობის გეგმებს, შესაბამის მუნიციპალურ სამსახურებში თქვენს წარმომადგენლობას.

სართულის გეგმები

3