პ88

270 m²

ავტორი:

პროექტის ღირებულება: 6750 ₾

მშენებლობის ფასი: 151200

პარამეტრები

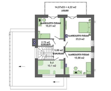
საცხოვრებელი ფართი

240 მ²

შენობის ფართობი

270 მ²

სიმაღლე

6000 მ

ნაკვეთის მინიმალური ზომა

0 მ²

სართულები

2

ოთახები

6

პროექტის ღირებულება

6750 ₾

მშენებლობის ფასი

151200 ₾

აღწერა

​​​​​​​თანამედროვე ორსართულიანი საცხოვრებელი/სააგარაკე ტიპის ინდივიდუალური სახლი, მოცემული პროექტი მოიცავს, ტოპოგრაფიას, გეოლოგიას,აზომვით ნახაზებს, მშენებლობის ნებართვის აღებას, პროექტის მომზადება-შეთანხმებას, კონსტრუქციულ ნახაზებს, ენერგო და წყალგაყვანილობის გეგმებს, შესაბამის მუნიციპალურ სამსახურებში თქვენს წარმომადგენლობას.

სართულის გეგმები

4 5