პ93

288 m²

ავტორი: p1000.ge

პროექტის ღირებულება: 7200 ₾

მშენებლობის ფასი: 161280

პარამეტრები

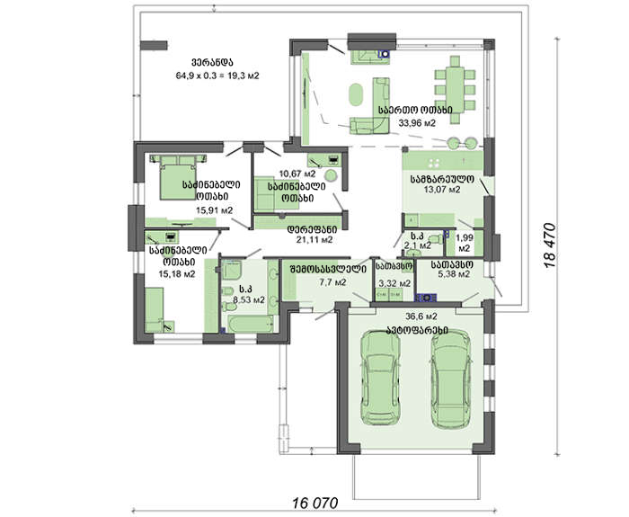
საცხოვრებელი ფართი

268 მ²

შენობის ფართობი

288 მ²

სიმაღლე

3000 მ

ნაკვეთის მინიმალური ზომა

300 მ²

სართულები

1

ოთახები

5

პროექტის ღირებულება

7200 ₾

მშენებლობის ფასი

161280 ₾

აღწერა

​​​​​​​თანამედროვე ერთსართულიანი საცხოვრებელი/სააგარაკე ტიპის ინდივიდუალური სახლი, მოცემული პროექტი მოიცავს, ტოპოგრაფიას, გეოლოგიას,აზომვით ნახაზებს, მშენებლობის ნებართვის აღებას, პროექტის მომზადება-შეთანხმებას, კონსტრუქციულ ნახაზებს, ენერგო და წყალგაყვანილობის გეგმებს, შესაბამის მუნიციპალურ სამსახურებში თქვენს წარმომადგენლობას.

სართულის გეგმები

4