პ96

285 m²

ავტორი: p1000.ge

პროექტის ღირებულება: 7125 ₾

მშენებლობის ფასი: 159600

პარამეტრები

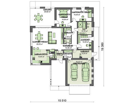
საცხოვრებელი ფართი

265 მ²

შენობის ფართობი

285 მ²

სიმაღლე

3000 მ

ნაკვეთის მინიმალური ზომა

300 მ²

სართულები

1

ოთახები

5

პროექტის ღირებულება

7125 ₾

მშენებლობის ფასი

159600 ₾

აღწერა

თანამედროვე ერთსართულიანი საცხოვრებელი/სააგარაკე ტიპის ინდივიდუალური სახლი, მოცემული პროექტი მოიცავს, ტოპოგრაფიას, გეოლოგიას,აზომვით ნახაზებს, მშენებლობის ნებართვის აღებას, პროექტის მომზადება-შეთანხმებას, კონსტრუქციულ ნახაზებს, ენერგო და წყალგაყვანილობის გეგმებს, შესაბამის მუნიციპალურ სამსახურებში თქვენს წარმომადგენლობას.

სართულის გეგმები

4