პ99

390 m²

ავტორი: p1000.ge

პროექტის ღირებულება: 9750 ₾

მშენებლობის ფასი: 218400

პარამეტრები

საცხოვრებელი ფართი

360 მ²

შენობის ფართობი

390 მ²

სიმაღლე

6000 მ

ნაკვეთის მინიმალური ზომა

300 მ²

სართულები

2

ოთახები

6

პროექტის ღირებულება

9750 ₾

მშენებლობის ფასი

218400 ₾

აღწერა

​​​​​​​თანამედროვე ორსართულიანი საცხოვრებელი/სააგარაკე ტიპის ინდივიდუალური სახლი, მოცემული პროექტი მოიცავს, ტოპოგრაფიას, გეოლოგიას,აზომვით ნახაზებს, მშენებლობის ნებართვის აღებას, პროექტის მომზადება-შეთანხმებას, კონსტრუქციულ ნახაზებს, ენერგო და წყალგაყვანილობის გეგმებს, შესაბამის მუნიციპალურ სამსახურებში თქვენს წარმომადგენლობას.

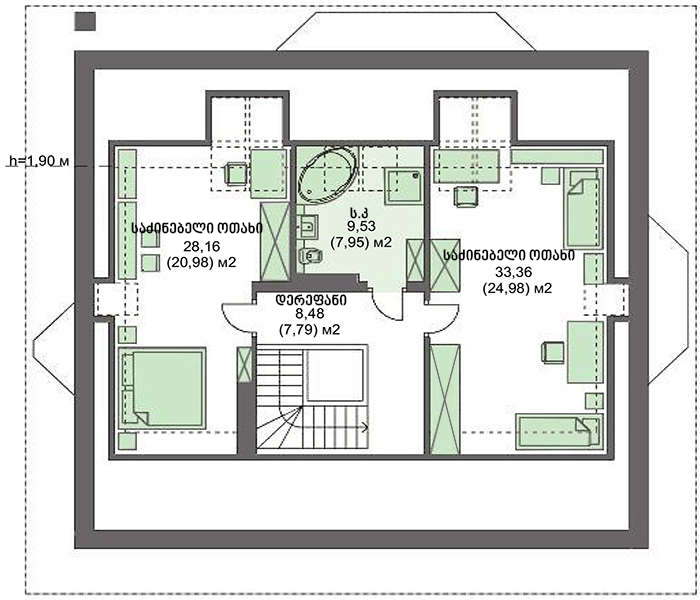
სართულის გეგმები

6 7