პ1029

210 m²

ავტორი: p1000.ge

პროექტის ღირებულება: 6090 ₾

მშენებლობის ფასი: 125200

პარამეტრები

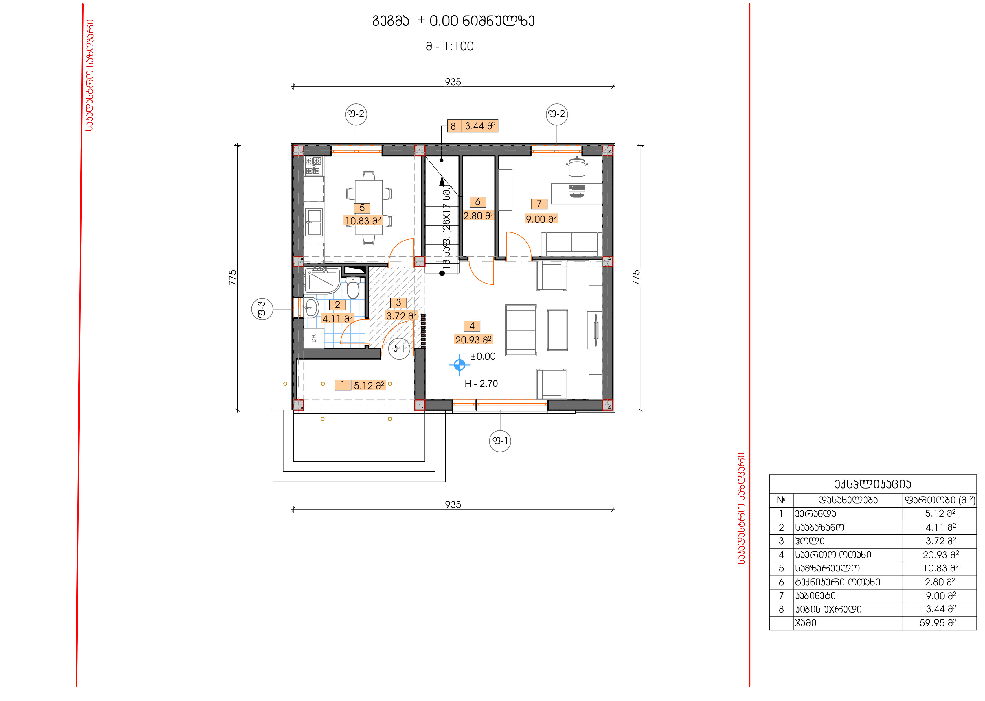
საცხოვრებელი ფართი

210 მ²

შენობის ფართობი

160 მ²

სიმაღლე

6 მ

ნაკვეთის მინიმალური ზომა

0 მ²

სართულები

2

ოთახები

0

პროექტის ღირებულება

6090 ₾

მშენებლობის ფასი

125200 ₾

აღწერა

თანამედროვე ორთსართულიანი საცხოვრებელი/სააგარაკე ტიპის ინდივიდუალური სახლი, მოცემული პროექტი მოიცავს, ტოპოგრაფიას, გეოლოგიას,აზომვით ნახაზებს, მშენებლობის ნებართვის აღებას, პროექტის მომზადება-შეთანხმებას, კონსტრუქციულ ნახაზებს, ენერგო და წყალგაყვანილობის გეგმებს, შესაბამის მუნიციპალურ სამსახურებში თქვენს წარმომადგენლობას.

სართულის გეგმები

8 9