პ1051

250 m²

ავტორი:

პროექტის ღირებულება: 5000 ₾

მშენებლობის ფასი: 150000

პარამეტრები

საცხოვრებელი ფართი

250 მ²

შენობის ფართობი

250 მ²

სიმაღლე

6 მ

ნაკვეთის მინიმალური ზომა

0 მ²

სართულები

2

ოთახები

0

პროექტის ღირებულება

5000 ₾

მშენებლობის ფასი

150000 ₾

აღწერა

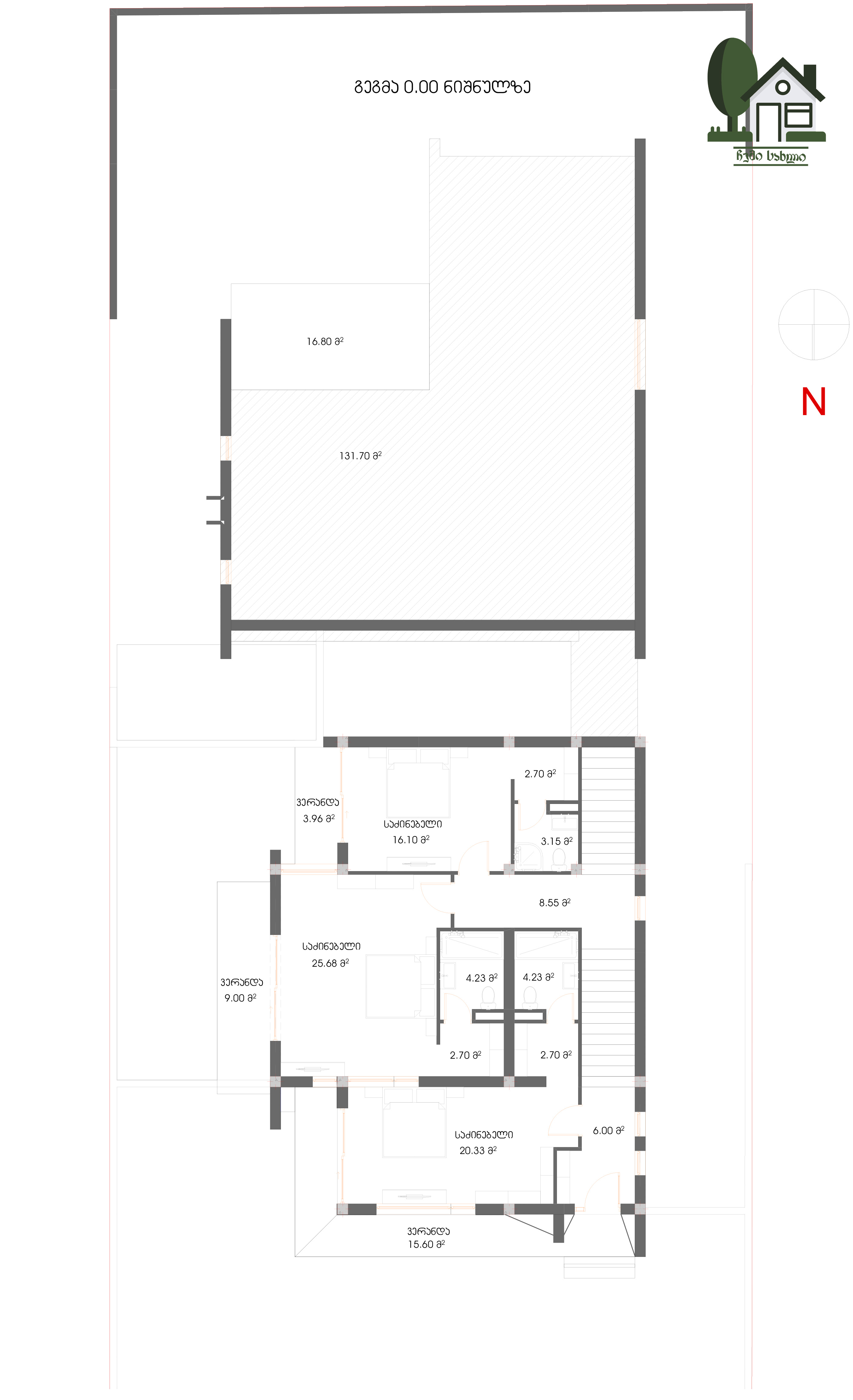
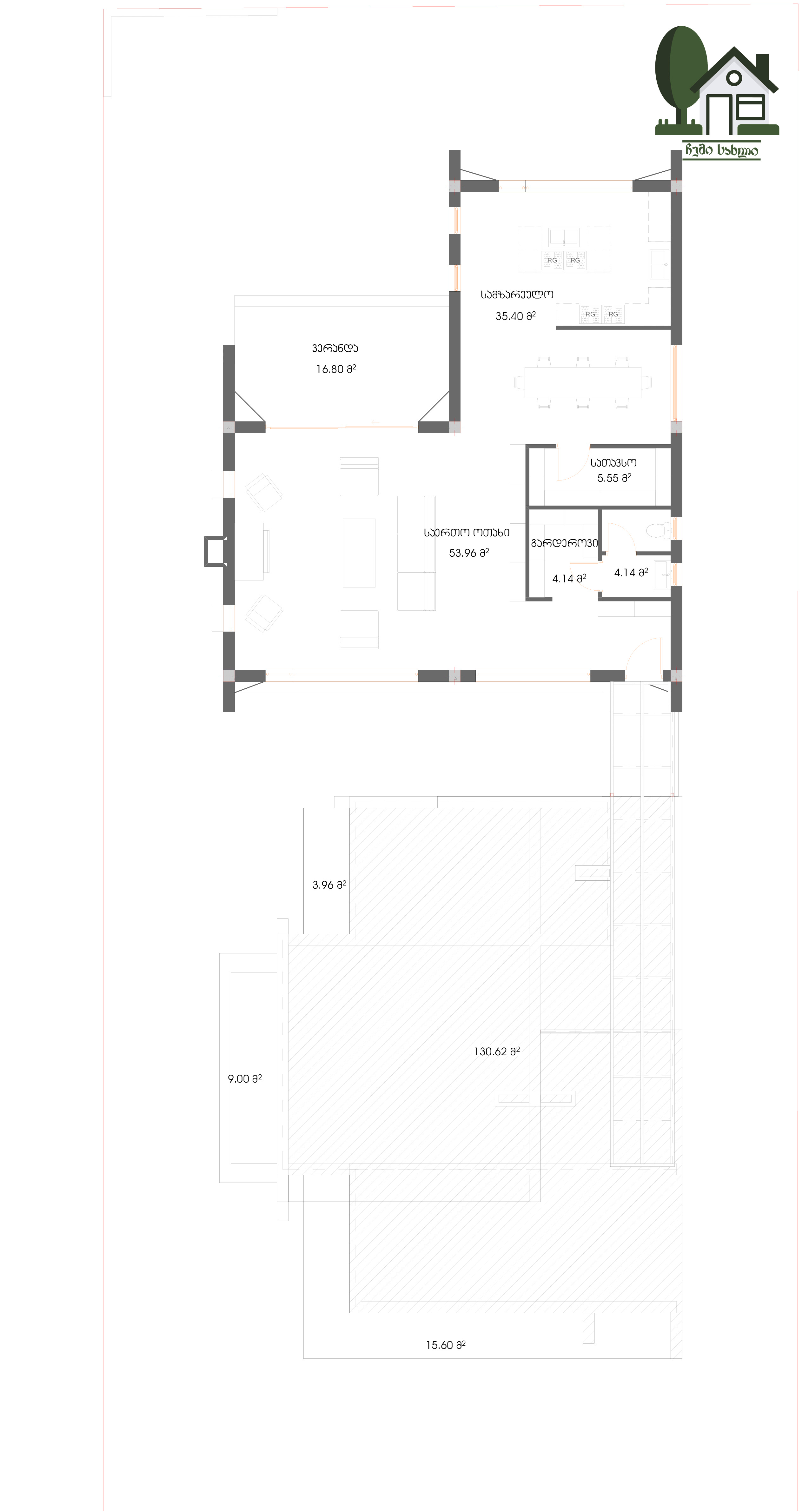
თანამედროვე ორსართულიანი საცხოვრებელი/სააგარაკე ტიპის ოთხბინიანი სახლი, მოცემული პროექტი მოიცავს, ტოპოგრაფიას, გეოლოგიას,აზომვით ნახაზებს, მშენებლობის ნებართვის აღებას, პროექტის მომზადება-შეთანხმებას, კონსტრუქციულ ნახაზებს, ენერგო და წყალგაყვანილობის გეგმებს, შესაბამის მუნიციპალურ სამსახურებში თქვენს წარმომადგენლობას.

სართულის გეგმები

6 7