პ1048

645 m²

ავტორი: p1000.ge

პროექტის ღირებულება: 12900 ₾

მშენებლობის ფასი: 345720

პარამეტრები

საცხოვრებელი ფართი

645 მ²

შენობის ფართობი

645 მ²

სიმაღლე

9 მ

ნაკვეთის მინიმალური ზომა

0 მ²

სართულები

3

ოთახები

0

პროექტის ღირებულება

12900 ₾

მშენებლობის ფასი

345720 ₾

აღწერა

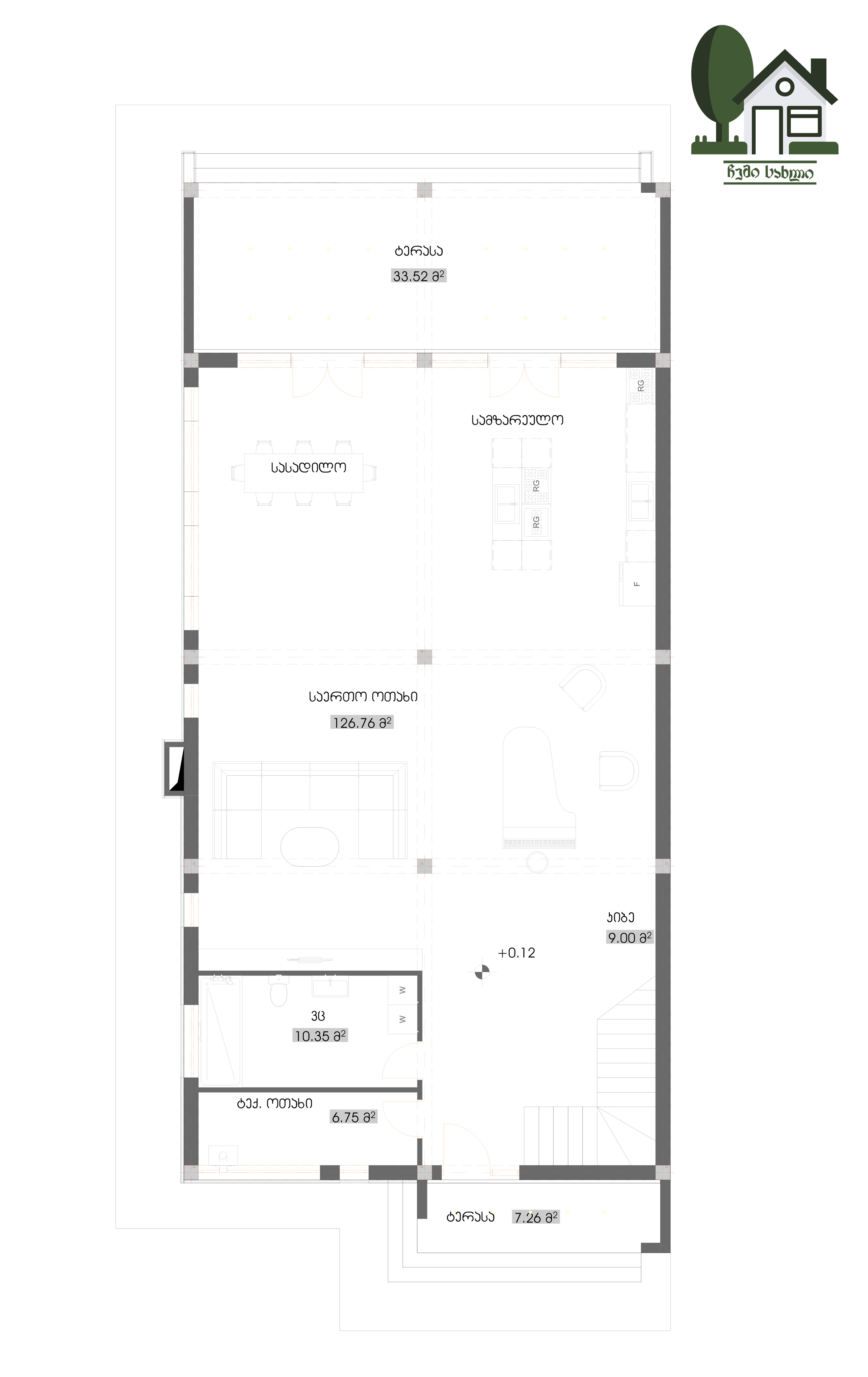
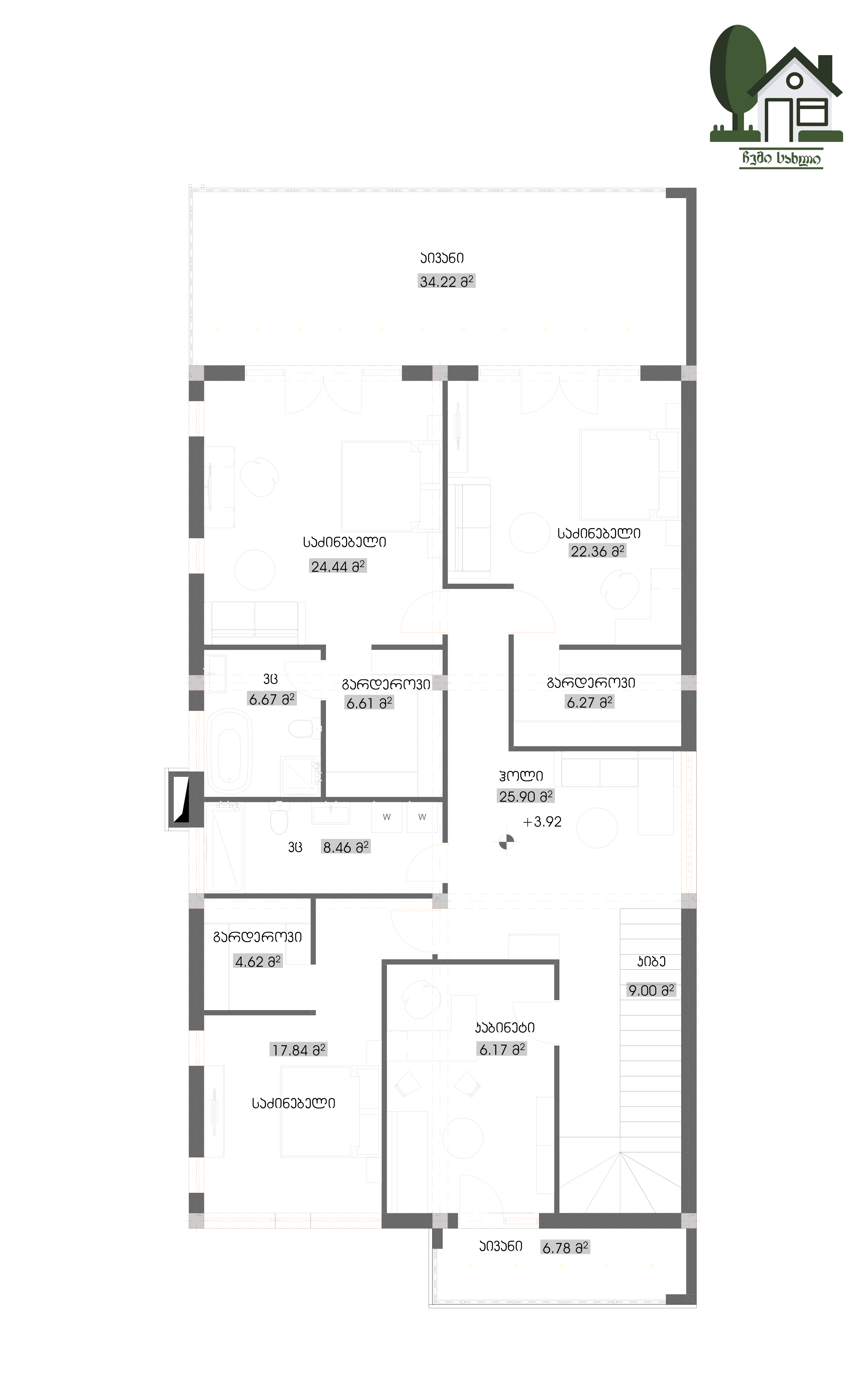
თანამედროვე სამსართულიანი საცხოვრებელი/სააგარაკე ტიპის ოთხბინიანი სახლი, მოცემული პროექტი მოიცავს, ტოპოგრაფიას, გეოლოგიას,აზომვით ნახაზებს, მშენებლობის ნებართვის აღებას, პროექტის მომზადება-შეთანხმებას, კონსტრუქციულ ნახაზებს, ენერგო და წყალგაყვანილობის გეგმებს, შესაბამის მუნიციპალურ სამსახურებში თქვენს წარმომადგენლობას.

სართულის გეგმები

7 8